Maison neuve à
Pecqueuse
(91470) Référence :
TD2454586_3
Prix du projet : Maison avec Terrain
prix 520 500 €
- 7 pièces
- 4 chambres
- Surface maison 160 m2
Pecqueuse : maison T7 (160 m²) en vente
IDÉALEMENT SITUÉE - MAISON 7 PIÈCES NEUVE
À vendre : à deux pas du RER B (station Saint-Rémy-lès-Chevreuse, 35 min de Paris), laissez vous charmer par cette maison de 7 pièces de 160 m² idéalement située dans Pecqueuse (91470).
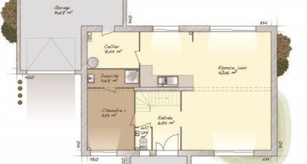
Cette maison possède 2 niveaux. Elle propose quatre chambres, une cuisine et deux salles de bains. Cette maison est neuve.
Le terrain de la propriété est de 433 m².
La maison est située dans un quartier convoité. L'École Primaire Serge Caro est implantée à moins de 10 minutes à pied. Côté transports, il y a la ligne de RER B (Saint-Rémy-Lès-Chevreuse) à moins de 10 minutes en voiture. On trouve un tennis à proximité.
Elle est proposée à l'achat pour 520 500 €.
N'hésitez pas à prendre contact avec Thibault DUTEURTRE (tél : 06-23-41-73-81) pour toute information sur la propriété, sur les modalités de vente ou sur les démarches à suivre. Maisons Balency Coignières est là pour vous accompagner à toutes les étapes de l'achat.
Annonce proposée par un Agent Commercial Partenaire.
Mentions légales
Terrain proposé par un partenaire foncier selon disponibilités et autorisation de publicité au prix de 155 000 €. Hors droit d'enregistrement et frais de notaire. Terrain + Maison proposés au prix de 520 500 € (Hors branchements et raccordements, papiers peints, peintures, revêtement de sol dans les chambres. Tarif modifiable sans préavis). Etiquette énergie : A. Différents modèles disponibles pour ce terrain. Assurances et garanties du constructeur (RC professionnelle, décennale, dommage ouvrage, garantie de remboursement de l'acompte, livraison à prix et délai convenu) : https://www.maisons-balency.fr/informations-legales/. HEXAOM Services est enregistré auprès de l'ORIAS en tant que Courtier en financement, Niveau 1, sous le numéro 14001345.Agence Maisons Balency de Coignières (78310)
- Téléphone :
- 01 34 61 42 59
- Adressse :
- Domexpo Ouest
78310 Coignières, France
