Maison neuve à
Péroy-les-Gombries
(60440) Référence :
MU2452453_1
Prix du projet : Maison avec Terrain
prix 290 000 €
- 5 pièces
- 3 chambres
- Surface maison 90 m2
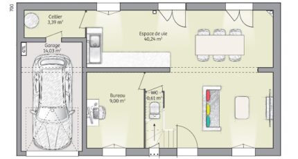
VENTE : maison de 5 pièces (90 m²) à Péroy-les-Gombries
IDÉALEMENT SITUÉE - VUE SANS VIS-À-VIS
Proche de la gare d'Ormoy-Villers (Paris à 50 min par le Transilien K), nous vous proposons cette maison de 5 pièces de 90 m² sans vis-à-vis en vente idéalement située dans Péroy-les-Gombries (60440).
Il s'agit d'une maison de 2 niveaux. Elle dispose de trois chambres, d'une cuisine et d'une salle de bains. La maison est neuve.
Le terrain du bien s'étend sur 422 m².
Cette maison se situe dans un quartier prisé. Une école primaire y est implantée. Côté transports, on trouve trois gares (Ormoy-Villers, Nanteuil-le-Haudouin et Crépy-en-Valois) à moins de 10 minutes en voiture. Il y a une bibliothèque et une épicerie à proximité.
Elle est proposée à l'achat pour 290 000 €.
Contactez notre agence (URBANSKY Mylann : 06-23-32-28-23) pour toute information sur la maison ou sur les modalités de vente. Maisons Balency Baillet-en-France vous accompagne à toutes les étapes de votre projet et dans toutes vos démarches.
Annonce proposée par un Agent Commercial Partenaire.
Mentions légales
Terrain proposé par un partenaire foncier selon disponibilités et autorisation de publicité au prix de 130 500 €. Hors droit d'enregistrement et frais de notaire. Terrain + Maison proposés au prix de 290 000 € (Hors branchements et raccordements, papiers peints, peintures, revêtement de sol dans les chambres. Tarif modifiable sans préavis). Etiquette énergie : A. Différents modèles disponibles pour ce terrain. Assurances et garanties du constructeur (RC professionnelle, décennale, dommage ouvrage, garantie de remboursement de l'acompte, livraison à prix et délai convenu) : https://www.maisons-balency.fr/informations-legales/. HEXAOM Services est enregistré auprès de l'ORIAS en tant que Courtier en financement, Niveau 1, sous le numéro 14001345.Agence Maisons Balency de Baillet-en-France (95560)
- Téléphone :
- 01 34 46 05 23
- Adressse :
- 81 rue de Paris
95560 Baillet-en-France, France
