Maison neuve à
Perruel (27910) Référence : SEMA9003-0_11

Prix du projet : Maison avec Terrain

prix 374 000 €

  • 7 pièces
  • 5 chambres
  • Surface maison 170 m2

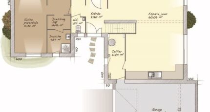
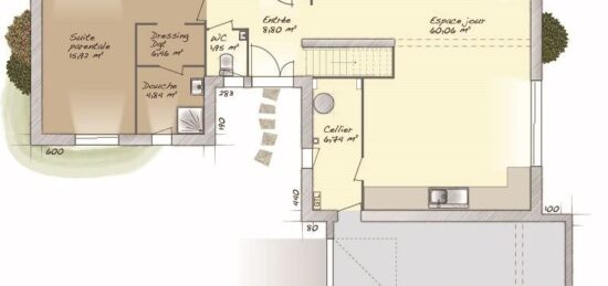
Perruel : maison F7 (170 m²) à vendre
PROCHE DE ROUEN - MAISON 7 PIÈCES NEUVE
À vendre : située à quelques kilomètres de Rouen, nous sommes ravis de vous présenter cette maison de 7 pièces de plain-pied de 170 m² à Perruel (27910). Conçue de plain-pied, elle compte cinq chambres, une cuisine et trois salles de bains.
Le terrain du bien est de 1 000 m².
Cette maison est neuve.
Il y a l'École Élémentaire du Centre à moins de 10 minutes à pied. L'autoroute A28 et la nationale N28 sont accessibles à moins de 18 km.
Elle est proposée à l'achat pour 374 000 €.
N'hésitez pas à prendre contact avec notre agence (MASSON Sébastien : 06-23-38-14-17) pour toute question sur la maison ou sur les démarches à suivre.

Annonce proposée par un Agent Commercial Partenaire.

Mentions légales

Terrain proposé par un partenaire foncier selon disponibilités et autorisation de publicité au prix de 44 000 €. Hors droit d'enregistrement et frais de notaire. Terrain + Maison proposés au prix de 374 000 € (Hors branchements et raccordements, papiers peints, peintures, revêtement de sol dans les chambres. Tarif modifiable sans préavis). Etiquette énergie : A. Différents modèles disponibles pour ce terrain. Assurances et garanties du constructeur (RC professionnelle, décennale, dommage ouvrage, garantie de remboursement de l'acompte, livraison à prix et délai convenu) : https://www.maisons-balency.fr/informations-legales/. HEXAOM Services est enregistré auprès de l'ORIAS en tant que Courtier en financement, Niveau 1, sous le numéro 14001345.

Contactez l'agence de Boos

02 35 80 66 66

    * Champs obligatoires

    Vos informations sont traitées par HEXAOM et transmises à un conseiller commercial qui vous contactera afin de répondre à votre demande. Les plans et images présentés sur notre site sont la propriété d’HEXAOM et ne peuvent pas être reproduits sans son accord. Pour retrouver notre politique de protection des données personnelles et exercer vos droits conformément à la « loi informatique et liberté » cliquez-ici.