Maison neuve à
Perruel (27910) Référence : SEMA9003-0_12

Prix du projet : Maison avec Terrain

prix 151 000 €

  • 4 pièces
  • 2 chambres
  • Surface maison 50 m2

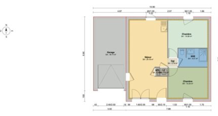
Perruel : maison F4 (49 m²) à vendre
PROCHE DE ROUEN - MAISON 4 PIÈCES NEUVE
À vendre : à quelques kilomètres de Rouen, votre agence Maisons Balency Boos est heureuse de vous présenter à Perruel (27910), cette maison de 4 pièces de plain-pied de 49 m² et de 1 000 m² de terrain. Elle offre deux chambres, une cuisine et une salle de bains.
La maison est neuve.
Il y a l'École Élémentaire du Centre à moins de 10 minutes à pied. L'autoroute A28 et la nationale N28 sont accessibles à moins de 18 km.
Elle est proposée à l'achat pour 151 000 €.
N'hésitez pas à prendre contact avec Sébastien MASSON (06-23-38-14-17) pour obtenir de plus amples informations sur cette maison, sur les modalités de vente ou sur les démarches à suivre. Donnez vie à vos projets immobiliers avec Maisons Balency Boos.

Annonce proposée par un Agent Commercial Partenaire.

Mentions légales

Terrain proposé par un partenaire foncier selon disponibilités et autorisation de publicité au prix de 44 000 €. Hors droit d'enregistrement et frais de notaire. Terrain + Maison proposés au prix de 107 000 € (Hors branchements et raccordements, papiers peints, peintures, revêtement de sol dans les chambres. Tarif modifiable sans préavis). Etiquette énergie : A. Différents modèles disponibles pour ce terrain. Assurances et garanties du constructeur (RC professionnelle, décennale, dommage ouvrage, garantie de remboursement de l'acompte, livraison à prix et délai convenu) : https://www.maisons-balency.fr/informations-legales/. HEXAOM Services est enregistré auprès de l'ORIAS en tant que Courtier en financement, Niveau 1, sous le numéro 14001345.

Contactez l'agence de Boos

02 35 80 66 66

    * Champs obligatoires

    Vos informations sont traitées par HEXAOM et transmises à un conseiller commercial qui vous contactera afin de répondre à votre demande. Les plans et images présentés sur notre site sont la propriété d’HEXAOM et ne peuvent pas être reproduits sans son accord. Pour retrouver notre politique de protection des données personnelles et exercer vos droits conformément à la « loi informatique et liberté » cliquez-ici.