Maison neuve à
Pîtres (27590) Référence : MJ2310826_4

Prix du projet : Maison avec Terrain

prix 265 000 €

  • 4 pièces
  • 3 chambres
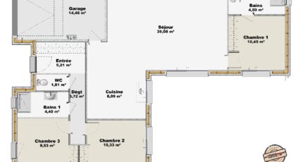
  • Surface maison 94 m2

Pîtres : maison T4 (94 m²) à vendre
IDÉALEMENT SITUÉE - MAISON 4 PIÈCES NEUVE
À vendre : à quelques kilomètres de Rouen, nous sommes heureux de vous présenter cette maison de 4 pièces de plain-pied de 94 m² et de 540 m² de terrain, idéalement située dans Pîtres (27590). Son intérieur dispose de trois chambres, d'une cuisine et de deux salles de bains.
La maison est neuve.
La maison se situe dans un secteur recherché. L'École Primaire Jacques Prévert y est implantée. Niveau transports, on trouve cinq gares à moins de 10 minutes en voiture. Les autoroutes A13 et A154 sont accessibles à moins de 10 km. Il y a une bibliothèque dans les environs.
Elle est à vendre pour la somme de 265 000 €.
Prenez contact avec notre agence (Michael JOURDON : 06.43.05.84.44) pour toute question sur la maison, sur les modalités de vente ou sur les démarches à suivre. Michael est là pour vous accompagner à toutes les étapes de votre projet.

Annonce proposée par un Agent Commercial Partenaire.

Mentions légales

Terrain proposé par un partenaire foncier selon disponibilités et autorisation de publicité au prix de 66 000 €. Hors droit d'enregistrement et frais de notaire. Terrain + Maison proposés au prix de 199 000 € (Hors branchements et raccordements, papiers peints, peintures, revêtement de sol dans les chambres. Tarif modifiable sans préavis). Etiquette énergie : A. Différents modèles disponibles pour ce terrain. Assurances et garanties du constructeur (RC professionnelle, décennale, dommage ouvrage, garantie de remboursement de l'acompte, livraison à prix et délai convenu) : https://www.maisons-balency.fr/informations-legales/. HEXAOM Services est enregistré auprès de l'ORIAS en tant que Courtier en financement, Niveau 1, sous le numéro 14001345.

Contactez l'agence de Boos

02 35 80 66 66

    * Champs obligatoires

    Vos informations sont traitées par HEXAOM et transmises à un conseiller commercial qui vous contactera afin de répondre à votre demande. Les plans et images présentés sur notre site sont la propriété d’HEXAOM et ne peuvent pas être reproduits sans son accord. Pour retrouver notre politique de protection des données personnelles et exercer vos droits conformément à la « loi informatique et liberté » cliquez-ici.