Maison neuve à
Pîtres (27590) Référence : EL2321442_1

Prix du projet : Maison avec Terrain

prix 150 000 €

  • 4 pièces
  • 2 chambres
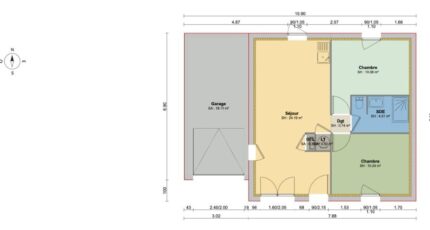
  • Surface maison 50 m2

VENTE d'une maison de 4 pièces (50 m²) à Pîtres
IDÉALEMENT SITUÉE - MAISON 4 PIÈCES NEUVE
À vendre : à 15 km de Rouen, idéalement située dans Pîtres (27590), venez découvrir cette maison de 4 pièces de plain-pied de 50 m² et de 525 m² de terrain.
Conçue de plain-pied, elle dispose de deux chambres, d'une cuisine et d'une salle de bains. Cette maison est neuve.
La maison se situe dans un quartier prisé. On y trouve l'École Primaire Jacques Prévert. Côté transports, il y a cinq gares à moins de 10 minutes en voiture. Les autoroutes A13 et A154 sont accessibles à moins de 10 km. On trouve une bibliothèque à proximité.
Elle est proposée à l'achat pour 150 000 €.
N'hésitez pas à prendre contact avec Dany LEOVANT (tél : 06-09-43-87-49) pour obtenir de plus amples renseignements sur la maison ou sur les démarches à suivre. Maisons Balency Boos vous accompagne dans tous vos projets immobiliers et à toutes les étapes de l'achat.

Annonce proposée par un Agent Commercial Partenaire.

Mentions légales

Terrain proposé par un partenaire foncier selon disponibilités et autorisation de publicité au prix de 45 000 €. Hors droit d'enregistrement et frais de notaire. Terrain + Maison proposés au prix de 150 000 € (Hors branchements et raccordements, papiers peints, peintures, revêtement de sol dans les chambres. Tarif modifiable sans préavis). Etiquette énergie : A. Différents modèles disponibles pour ce terrain. Assurances et garanties du constructeur (RC professionnelle, décennale, dommage ouvrage, garantie de remboursement de l'acompte, livraison à prix et délai convenu) : https://www.maisons-balency.fr/informations-legales/. HEXAOM Services est enregistré auprès de l'ORIAS en tant que Courtier en financement, Niveau 1, sous le numéro 14001345.

Contactez l'agence de Boos

02 35 80 66 66

    * Champs obligatoires

    Vos informations sont traitées par HEXAOM et transmises à un conseiller commercial qui vous contactera afin de répondre à votre demande. Les plans et images présentés sur notre site sont la propriété d’HEXAOM et ne peuvent pas être reproduits sans son accord. Pour retrouver notre politique de protection des données personnelles et exercer vos droits conformément à la « loi informatique et liberté » cliquez-ici.