Maison neuve à
Pîtres (27590) Référence : DL2358702_1

Prix du projet : Maison avec Terrain

prix 144 000 €

  • 4 pièces
  • 2 chambres
  • Surface maison 50 m2

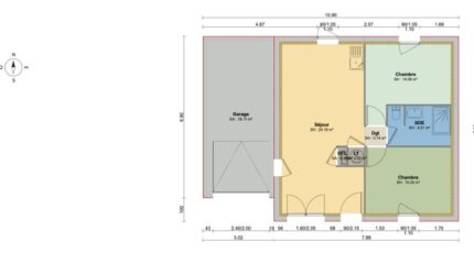
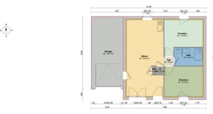
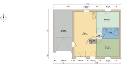
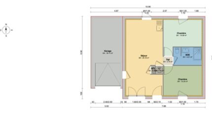
Maison de 4 pièces (50 m²) à vendre à Pîtres
CENTRE-VILLE - MAISON 4 PIÈCES NEUVE
À 15 km de Rouen, Maisons Balency Boos vous présente cette maison de 4 pièces de 50 m² avec vue sur espace vert à vendre au coeur de Pîtres (27590).
Il s'agit d'une maison de plain-pied. Elle comporte deux chambres, une cuisine et une salle de bains. La maison est neuve.
Le terrain du bien est de 550 m².
L'École Primaire Jacques Prévert est implantée dans la commune. Niveau transports en commun, il y a cinq gares à moins de 10 minutes en voiture. Les autoroutes A13 et A154 sont accessibles à moins de 10 km. On trouve une bibliothèque à proximité de la maison.
Son prix de vente est de 144 000 €.
Prenez contact avec Dany LEOVANT (tél : 06-09-43-87-49) pour toute information sur le bien ou sur les modalités de vente. Maisons Balency Boos est là pour vous accompagner dans tous vos projets immobiliers.

Annonce proposée par un Agent Commercial Partenaire.

Mentions légales

Terrain proposé par un partenaire foncier selon disponibilités et autorisation de publicité au prix de 42 000 €. Hors droit d'enregistrement et frais de notaire. Terrain + Maison proposés au prix de 144 000 € (Hors branchements et raccordements, papiers peints, peintures, revêtement de sol dans les chambres. Tarif modifiable sans préavis). Etiquette énergie : A. Différents modèles disponibles pour ce terrain. Assurances et garanties du constructeur (RC professionnelle, décennale, dommage ouvrage, garantie de remboursement de l'acompte, livraison à prix et délai convenu) : https://www.maisons-balency.fr/informations-legales/. HEXAOM Services est enregistré auprès de l'ORIAS en tant que Courtier en financement, Niveau 1, sous le numéro 14001345.

Contactez l'agence de Boos

02 35 80 66 66

    * Champs obligatoires

    Vos informations sont traitées par HEXAOM et transmises à un conseiller commercial qui vous contactera afin de répondre à votre demande. Les plans et images présentés sur notre site sont la propriété d’HEXAOM et ne peuvent pas être reproduits sans son accord. Pour retrouver notre politique de protection des données personnelles et exercer vos droits conformément à la « loi informatique et liberté » cliquez-ici.