Maison neuve à
Pîtres (27590) Référence : AK2388877_5

Prix du projet : Maison avec Terrain

prix 230 000 €

  • 4 pièces
  • 3 chambres
  • Surface maison 120 m2

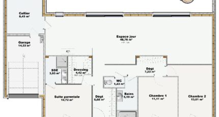
Pîtres : maison F4 (120 m²) à vendre
QUARTIER RECHERCHÉ - MAISON 4 PIÈCES NEUVE
À 15 km de Rouen, notre agence Maisons Balency Boos est ravie de vous proposer cette maison de 4 pièces de plain-pied de 120 m² et de 550 m² de terrain dans un quartier convoité de Pîtres (27590). Son intérieur inclut trois chambres, une cuisine et deux salles de bains.
Cette maison est neuve.
La maison se trouve dans un secteur recherché. On y trouve l'École Primaire Jacques Prévert. Niveau transports en commun, il y a cinq gares à moins de 10 minutes en voiture. Les autoroutes A13 et A154 sont accessibles à moins de 10 km. On trouve une bibliothèque à proximité de la maison.
Son prix de vente est de 230 000 €.
N'hésitez pas à prendre contact avec notre agence (Amane JOURDON : 06-98-97-57-93) pour obtenir de plus amples renseignements sur la maison, sur les démarches à suivre ou sur les modalités de vente. Maisons Balency Boos est là pour vous accompagner à toutes les étapes de l'achat.

Annonce proposée par un Agent Commercial Partenaire.

Mentions légales

Terrain proposé par un partenaire foncier selon disponibilités et autorisation de publicité au prix de 45 000 €. Hors droit d'enregistrement et frais de notaire. Terrain + Maison proposés au prix de 230 000 € (Hors branchements et raccordements, papiers peints, peintures, revêtement de sol dans les chambres. Tarif modifiable sans préavis). Etiquette énergie : A. Différents modèles disponibles pour ce terrain. Assurances et garanties du constructeur (RC professionnelle, décennale, dommage ouvrage, garantie de remboursement de l'acompte, livraison à prix et délai convenu) : https://www.maisons-balency.fr/informations-legales/. HEXAOM Services est enregistré auprès de l'ORIAS en tant que Courtier en financement, Niveau 1, sous le numéro 14001345.

Contactez l'agence de Boos

02 35 80 66 66

    * Champs obligatoires

    Vos informations sont traitées par HEXAOM et transmises à un conseiller commercial qui vous contactera afin de répondre à votre demande. Les plans et images présentés sur notre site sont la propriété d’HEXAOM et ne peuvent pas être reproduits sans son accord. Pour retrouver notre politique de protection des données personnelles et exercer vos droits conformément à la « loi informatique et liberté » cliquez-ici.