Maison neuve à
Pîtres (27590) Référence : SEMA9068_11

Prix du projet : Maison avec Terrain

prix 397 000 €

  • 7 pièces
  • 5 chambres
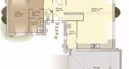
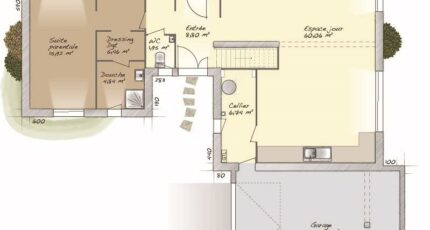
  • Surface maison 170 m2

Pîtres : maison T7 (170 m²) en vente
MAISON 7 PIÈCES NEUVE - PROCHE DE ROUEN
À vendre : à deux pas de Rouen, à Pîtres (27590), nous vous présentons cette maison de 7 pièces de plain-pied de 170 m² et de 600 m² de terrain.
Elle dispose de cinq chambres, d'une cuisine et de trois salles de bains. Cette maison est neuve.
Il y a l'École Primaire Jacques Prévert dans la commune. Côté transports en commun, on trouve cinq gares à moins de 10 minutes en voiture. Les autoroutes A13 et A154 sont accessibles à moins de 10 km. Il y a une bibliothèque à proximité du logement.
Elle est à vendre pour la somme de 397 000 €.
Contactez Sébastien MASSON (tél : 06-23-38-14-17) pour toute question sur le bien, sur les démarches à suivre ou sur les modalités de vente. Maisons Balency Boos vous accompagne à toutes les étapes de votre projet et dans tous vos projets immobiliers.

Annonce proposée par un Agent Commercial Partenaire.

Mentions légales

Terrain proposé par un partenaire foncier selon disponibilités et autorisation de publicité au prix de 67 000 €. Hors droit d'enregistrement et frais de notaire. Terrain + Maison proposés au prix de 330 000 € (Hors branchements et raccordements, papiers peints, peintures, revêtement de sol dans les chambres. Tarif modifiable sans préavis). Etiquette énergie : A. Différents modèles disponibles pour ce terrain. Assurances et garanties du constructeur (RC professionnelle, décennale, dommage ouvrage, garantie de remboursement de l'acompte, livraison à prix et délai convenu) : https://www.maisons-balency.fr/informations-legales/. HEXAOM Services est enregistré auprès de l'ORIAS en tant que Courtier en financement, Niveau 1, sous le numéro 14001345.

Contactez l'agence de Boos

02 35 80 66 66

    * Champs obligatoires

    Vos informations sont traitées par HEXAOM et transmises à un conseiller commercial qui vous contactera afin de répondre à votre demande. Les plans et images présentés sur notre site sont la propriété d’HEXAOM et ne peuvent pas être reproduits sans son accord. Pour retrouver notre politique de protection des données personnelles et exercer vos droits conformément à la « loi informatique et liberté » cliquez-ici.