Maison neuve à
Pîtres (27590) Référence : SEMA9068_12

Prix du projet : Maison avec Terrain

prix 174 000 €

  • 4 pièces
  • 2 chambres
  • Surface maison 50 m2

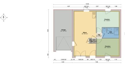
Maison de 4 pièces (49 m²) à vendre à Pîtres
MAISON 4 PIÈCES NEUVE - PROCHE DE ROUEN
À vendre : à 15 km de Rouen, nous sommes heureux de vous proposer cette maison de 4 pièces de plain-pied de 49 m² et de 600 m² de terrain à Pîtres (27590).
Elle compte deux chambres, une cuisine et une salle de bains. La maison est neuve.
Il y a l'École Primaire Jacques Prévert dans la commune. Niveau transports en commun, on trouve cinq gares à moins de 10 minutes en voiture. Les autoroutes A13 et A154 sont accessibles à moins de 10 km. Il y a une bibliothèque à proximité.
Il est à vendre pour la somme de 174 000 €.
Prenez contact avec Sébastien MASSON (06-23-38-14-17) pour toute information sur cette maison, sur les modalités de vente ou sur les démarches à suivre.

Annonce proposée par un Agent Commercial Partenaire.

Mentions légales

Terrain proposé par un partenaire foncier selon disponibilités et autorisation de publicité au prix de 67 000 €. Hors droit d'enregistrement et frais de notaire. Terrain + Maison proposés au prix de 174 000 € (Hors branchements et raccordements, papiers peints, peintures, revêtement de sol dans les chambres. Tarif modifiable sans préavis). Etiquette énergie : A. Différents modèles disponibles pour ce terrain. Assurances et garanties du constructeur (RC professionnelle, décennale, dommage ouvrage, garantie de remboursement de l'acompte, livraison à prix et délai convenu) : https://www.maisons-balency.fr/informations-legales/. HEXAOM Services est enregistré auprès de l'ORIAS en tant que Courtier en financement, Niveau 1, sous le numéro 14001345.

Contactez l'agence de Boos

02 35 80 66 66

    * Champs obligatoires

    Vos informations sont traitées par HEXAOM et transmises à un conseiller commercial qui vous contactera afin de répondre à votre demande. Les plans et images présentés sur notre site sont la propriété d’HEXAOM et ne peuvent pas être reproduits sans son accord. Pour retrouver notre politique de protection des données personnelles et exercer vos droits conformément à la « loi informatique et liberté » cliquez-ici.