Maison neuve à
Pîtres (27590) Référence : SEMA9068_7

Prix du projet : Maison avec Terrain

prix 261 000 €

  • 9 pièces
  • 5 chambres
  • Surface maison 124 m2

Pîtres : maison de 9 pièces (124 m²) en vente
MAISON 9 PIÈCES NEUVE - PROCHE DE ROUEN
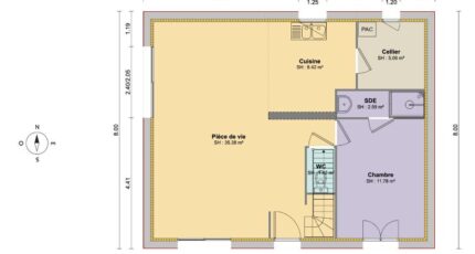
À vendre : à 15 km de Rouen, à Pîtres (27590), nous sommes ravis de vous proposer cette maison de 9 pièces de 124 m².
Cette maison comporte 2 niveaux. Son intérieur propose cinq chambres, une cuisine et trois salles de bains. La maison est neuve.
Le terrain du bien s'étend sur 600 m².
L'École Primaire Jacques Prévert est implantée dans la commune. Côté transports, il y a cinq gares à moins de 10 minutes en voiture. Les autoroutes A13 et A154 sont accessibles à moins de 10 km. On trouve une bibliothèque à proximité.
Elle est à vendre pour la somme de 261 000 €.
N'hésitez pas à prendre contact avec Sébastien MASSON (06-23-38-14-17) pour toute information sur cette maison. Concrétisez vos projets immobiliers avec Maisons Balency Boos.

Annonce proposée par un Agent Commercial Partenaire.

Mentions légales

Terrain proposé par un partenaire foncier selon disponibilités et autorisation de publicité au prix de 67 000 €. Hors droit d'enregistrement et frais de notaire. Terrain + Maison proposés au prix de 261 000 € (Hors branchements et raccordements, papiers peints, peintures, revêtement de sol dans les chambres. Tarif modifiable sans préavis). Etiquette énergie : A. Différents modèles disponibles pour ce terrain. Assurances et garanties du constructeur (RC professionnelle, décennale, dommage ouvrage, garantie de remboursement de l'acompte, livraison à prix et délai convenu) : https://www.maisons-balency.fr/informations-legales/. HEXAOM Services est enregistré auprès de l'ORIAS en tant que Courtier en financement, Niveau 1, sous le numéro 14001345.

Contactez l'agence de Boos

02 35 80 66 66

    * Champs obligatoires

    Vos informations sont traitées par HEXAOM et transmises à un conseiller commercial qui vous contactera afin de répondre à votre demande. Les plans et images présentés sur notre site sont la propriété d’HEXAOM et ne peuvent pas être reproduits sans son accord. Pour retrouver notre politique de protection des données personnelles et exercer vos droits conformément à la « loi informatique et liberté » cliquez-ici.