Maison neuve à
Pîtres (27590) Référence : SEMA9068_9

Prix du projet : Maison avec Terrain

prix 341 000 €

  • 5 pièces
  • 3 chambres
  • Surface maison 120 m2

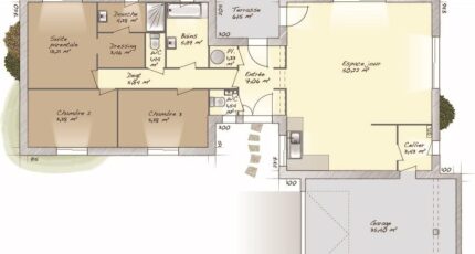
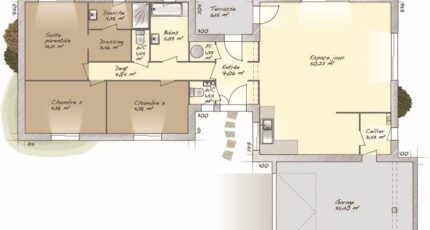
VENTE : maison F5 (120 m²) à Pîtres
MAISON 5 PIÈCES NEUVE - PROCHE DE ROUEN
À quelques kilomètres de Rouen, votre agence Maisons Balency Boos est ravie de vous proposer à vendre à Pîtres (27590), cette maison de 5 pièces de plain-pied de 120 m². Elle est composée de trois chambres, d'une cuisine et de deux salles de bains.
Le terrain du bien est de 600 m².
La maison est neuve.
L'École Primaire Jacques Prévert est implantée dans la commune. Niveau transports en commun, on trouve cinq gares à moins de 10 minutes en voiture. Les autoroutes A13 et A154 sont accessibles à moins de 10 km. Il y a une bibliothèque à quelques minutes de la maison.
Elle est proposée à l'achat pour 341 000 €.
Contactez notre agence (MASSON Sébastien : 06-23-38-14-17) pour tout renseignement sur cette propriété.

Annonce proposée par un Agent Commercial Partenaire.

Mentions légales

Terrain proposé par un partenaire foncier selon disponibilités et autorisation de publicité au prix de 67 000 €. Hors droit d'enregistrement et frais de notaire. Terrain + Maison proposés au prix de 341 000 € (Hors branchements et raccordements, papiers peints, peintures, revêtement de sol dans les chambres. Tarif modifiable sans préavis). Etiquette énergie : A. Différents modèles disponibles pour ce terrain. Assurances et garanties du constructeur (RC professionnelle, décennale, dommage ouvrage, garantie de remboursement de l'acompte, livraison à prix et délai convenu) : https://www.maisons-balency.fr/informations-legales/. HEXAOM Services est enregistré auprès de l'ORIAS en tant que Courtier en financement, Niveau 1, sous le numéro 14001345.

Contactez l'agence de Boos

02 35 80 66 66

    * Champs obligatoires

    Vos informations sont traitées par HEXAOM et transmises à un conseiller commercial qui vous contactera afin de répondre à votre demande. Les plans et images présentés sur notre site sont la propriété d’HEXAOM et ne peuvent pas être reproduits sans son accord. Pour retrouver notre politique de protection des données personnelles et exercer vos droits conformément à la « loi informatique et liberté » cliquez-ici.