Maison neuve à
Pont-Audemer (27500) Référence : MJ2370653_3

Prix du projet : Maison avec Terrain

prix 289 900 €

  • 5 pièces
  • 3 chambres
  • Surface maison 120 m2

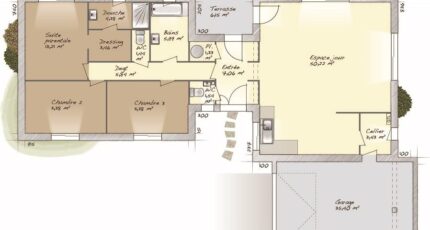
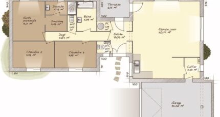
VENTE d'une maison F5 (120 m²) à Appeville-Annebault
IDÉALEMENT SITUÉE - MAISON 5 PIÈCES NEUVE
À vendre : située à 26 km de la Manche, notre agence Maisons Balency Boos est heureuse de vous présenter cette maison de 5 pièces de plain-pied de 120 m² et de 922 m² de terrain idéalement située dans Appeville-Annebault (27290).
Conçue de plain-pied, elle propose trois chambres, une cuisine et deux salles de bains. La maison est neuve.
La maison se situe dans un secteur convoité. On trouve l'École Primaire les Chataigniers, le Collège Marcel Marceron et le Collège le Roumois à moins de 10 minutes en voiture et deux crèches à moins de 10 minutes à pied. Côté transports, il y a la gare Glos-Montfort à moins de 10 minutes en voiture. Les autoroutes A13 et A131 sont accessibles à moins de 9 km. On trouve des tennis, une bibliothèque, deux bassins de natation, des commerces, des boulangeries, des supermarchés, des boucheries-charcuteries et une supérette dans les environs. Le marché Place Leclerc a lieu tous les mercredis matin.
Elle est proposée à l'achat pour 289 900 €.
Contactez Michael JOURDON (06.43.05.84.44) pour obtenir de plus amples informations sur la maison. Maisons Balency Boos vous accompagne dans tous vos projets immobiliers et à toutes les étapes de votre projet.

Annonce proposée par un Agent Commercial Partenaire.

Mentions légales

Terrain proposé par un partenaire foncier selon disponibilités et autorisation de publicité au prix de 49 000 €. Hors droit d'enregistrement et frais de notaire. Terrain + Maison proposés au prix de 240 900 € (Hors branchements et raccordements, papiers peints, peintures, revêtement de sol dans les chambres. Tarif modifiable sans préavis). Etiquette énergie : A. Différents modèles disponibles pour ce terrain. Assurances et garanties du constructeur (RC professionnelle, décennale, dommage ouvrage, garantie de remboursement de l'acompte, livraison à prix et délai convenu) : https://www.maisons-balency.fr/informations-legales/. HEXAOM Services est enregistré auprès de l'ORIAS en tant que Courtier en financement, Niveau 1, sous le numéro 14001345.

Contactez l'agence de Boos

02 35 80 66 66

    * Champs obligatoires

    Vos informations sont traitées par HEXAOM et transmises à un conseiller commercial qui vous contactera afin de répondre à votre demande. Les plans et images présentés sur notre site sont la propriété d’HEXAOM et ne peuvent pas être reproduits sans son accord. Pour retrouver notre politique de protection des données personnelles et exercer vos droits conformément à la « loi informatique et liberté » cliquez-ici.