Maison neuve à
Pont-Audemer (27500) Référence : MJ2370653_4

Prix du projet : Maison avec Terrain

prix 299 000 €

  • 6 pièces
  • 5 chambres
  • Surface maison 114 m2

VENTE d'une maison de 6 pièces (114 m²) à Appeville-Annebault
IDÉALEMENT SITUÉE - MAISON 6 PIÈCES NEUVE
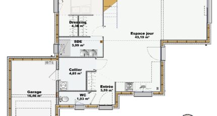
En vente : localisée à 26 km de la Manche, idéalement située dans Appeville-Annebault (27290), votre agence Maisons Balency Boos est heureuse de vous proposer cette maison de 6 pièces de 114 m² et de 922 m² de terrain.
Cette maison comporte 2 niveaux. Son intérieur se divise en cinq chambres, une cuisine et deux salles de bains. La maison est neuve.
Cette maison est située dans un quartier prisé. L'École Primaire les Chataigniers, le Collège Marcel Marceron et le Collège le Roumois se trouvent à moins de 10 minutes en voiture, tout comme deux structures d'accueil pour les enfants en bas âge à moins de 10 minutes à pied. Niveau transports en commun, il y a la gare Glos-Montfort à moins de 10 minutes en voiture. Les autoroutes A13 et A131 sont accessibles à moins de 9 km. On trouve des tennis, une bibliothèque, deux bassins de natation, des commerces, des boulangeries, des supermarchés, des boucheries-charcuteries et trois bureaux de poste à quelques minutes du bien. Enfin, le marché Place Leclerc anime les environs chaque mercredi matin.
Elle est proposée à l'achat pour 299 000 €.
Prenez contact avec Michael JOURDON (06.43.05.84.44) pour toute question sur la propriété ou sur les démarches à suivre. Maisons Balency Boos est là pour vous accompagner dans tous vos projets immobiliers.

Annonce proposée par un Agent Commercial Partenaire.

Mentions légales

Terrain proposé par un partenaire foncier selon disponibilités et autorisation de publicité au prix de 49 000 €. Hors droit d'enregistrement et frais de notaire. Terrain + Maison proposés au prix de 250 000 € (Hors branchements et raccordements, papiers peints, peintures, revêtement de sol dans les chambres. Tarif modifiable sans préavis). Etiquette énergie : A. Différents modèles disponibles pour ce terrain. Assurances et garanties du constructeur (RC professionnelle, décennale, dommage ouvrage, garantie de remboursement de l'acompte, livraison à prix et délai convenu) : https://www.maisons-balency.fr/informations-legales/. HEXAOM Services est enregistré auprès de l'ORIAS en tant que Courtier en financement, Niveau 1, sous le numéro 14001345.

Contactez l'agence de Boos

02 35 80 66 66

    * Champs obligatoires

    Vos informations sont traitées par HEXAOM et transmises à un conseiller commercial qui vous contactera afin de répondre à votre demande. Les plans et images présentés sur notre site sont la propriété d’HEXAOM et ne peuvent pas être reproduits sans son accord. Pour retrouver notre politique de protection des données personnelles et exercer vos droits conformément à la « loi informatique et liberté » cliquez-ici.