Maison neuve à
Pont-Authou (27290) Référence : EL2340129_4

Prix du projet : Maison avec Terrain

prix 168 600 €

  • 4 pièces
  • 2 chambres
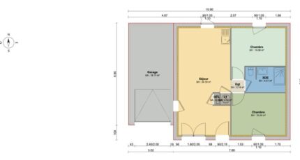
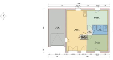
  • Surface maison 50 m2

Pont-Authou : maison F4 (50 m²) en vente
IDÉALEMENT SITUÉE - MAISON 4 PIÈCES NEUVE
À 36 km de la Manche, Maisons Balency Boos vous propose cette maison de 4 pièces de plain-pied de 50 m² et de 600 m² de terrain à vendre, idéalement située dans Pont-Authou (27290). Elle offre deux chambres, une cuisine et une salle de bains.
La maison est neuve.
Cette maison se trouve dans un quartier prisé. On y trouve une école primaire. Niveau transports en commun, il y a deux gares (Glos-Montfort et Brionne) à moins de 10 minutes en voiture. Il y a un accès à l'autoroute A28 à 6 km. On trouve une boulangerie, une épicerie et une boucherie-charcuterie à quelques minutes à peine.
Elle est proposée à l'achat pour 168 600 €.
N'hésitez pas à prendre contact avec Aurélien LEOVANT (tél : 02-35-80-66-66) pour toute information sur la maison. Concrétisez vos projets immobiliers avec Maisons Balency Boos.

Annonce proposée par un Agent Commercial Partenaire.

Mentions légales

Terrain proposé par un partenaire foncier selon disponibilités et autorisation de publicité au prix de 63 600 €. Hors droit d'enregistrement et frais de notaire. Terrain + Maison proposés au prix de 105 000 € (Hors branchements et raccordements, papiers peints, peintures, revêtement de sol dans les chambres. Tarif modifiable sans préavis). Etiquette énergie : A. Différents modèles disponibles pour ce terrain. Assurances et garanties du constructeur (RC professionnelle, décennale, dommage ouvrage, garantie de remboursement de l'acompte, livraison à prix et délai convenu) : https://www.maisons-balency.fr/informations-legales/. HEXAOM Services est enregistré auprès de l'ORIAS en tant que Courtier en financement, Niveau 1, sous le numéro 14001345.

Contactez l'agence de Boos

02 35 80 66 66

    * Champs obligatoires

    Vos informations sont traitées par HEXAOM et transmises à un conseiller commercial qui vous contactera afin de répondre à votre demande. Les plans et images présentés sur notre site sont la propriété d’HEXAOM et ne peuvent pas être reproduits sans son accord. Pour retrouver notre politique de protection des données personnelles et exercer vos droits conformément à la « loi informatique et liberté » cliquez-ici.