Maison neuve à
Pont-de-l'Arche (27340) Référence : MJ2311238_3

Prix du projet : Maison avec Terrain

prix 247 500 €

  • 7 pièces
  • 6 chambres
  • Surface maison 104 m2

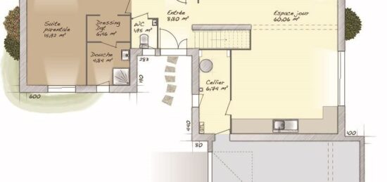
VENTE : maison F7 (104 m²) au Manoir
IDÉALEMENT SITUÉE - MAISON 7 PIÈCES NEUVE
En vente : localisée à 15 km de Rouen, nous vous présentons, idéalement située dans Le Manoir (27460), cette maison de 7 pièces de 104 m².
Cette maison compte 2 niveaux. Elle dispose de six chambres, d'une cuisine et de deux salles de bains. Cette maison est neuve.
Le terrain du bien s'étend sur 426 m².
La maison se trouve dans un quartier prisé. L'École Maternelle Yannick Bayart et l'École Élémentaire Albert Becquart sont implantées à moins de 10 minutes à pied. Niveau transports en commun, il y a six gares à moins de 10 minutes en voiture. Les autoroutes A13 et A154 sont accessibles à moins de 8 km. On trouve une boulangerie, une boucherie-charcuterie et une épicerie à quelques minutes de la maison.
Son prix de vente est de 247 500 €.
Contactez notre agence (Michael JOURDON : 06.43.05.84.44) pour obtenir de plus amples informations sur la maison, sur les modalités de vente et sur les démarches à suivre. Michael vous accompagne dans tous vos projets immobiliers et à toutes les étapes de l'achat.

Annonce proposée par un Agent Commercial Partenaire.

Mentions légales

Terrain proposé par un partenaire foncier selon disponibilités et autorisation de publicité au prix de 69 500 €. Hors droit d'enregistrement et frais de notaire. Terrain + Maison proposés au prix de 178 000 € (Hors branchements et raccordements, papiers peints, peintures, revêtement de sol dans les chambres. Tarif modifiable sans préavis). Etiquette énergie : A. Différents modèles disponibles pour ce terrain. Assurances et garanties du constructeur (RC professionnelle, décennale, dommage ouvrage, garantie de remboursement de l'acompte, livraison à prix et délai convenu) : https://www.maisons-balency.fr/informations-legales/. HEXAOM Services est enregistré auprès de l'ORIAS en tant que Courtier en financement, Niveau 1, sous le numéro 14001345.

Contactez l'agence de Boos

02 35 80 66 66

    * Champs obligatoires

    Vos informations sont traitées par HEXAOM et transmises à un conseiller commercial qui vous contactera afin de répondre à votre demande. Les plans et images présentés sur notre site sont la propriété d’HEXAOM et ne peuvent pas être reproduits sans son accord. Pour retrouver notre politique de protection des données personnelles et exercer vos droits conformément à la « loi informatique et liberté » cliquez-ici.