Maison neuve à
Pont-de-l'Arche (27340) Référence : MJ2311328_3

Prix du projet : Maison avec Terrain

prix 258 000 €

  • 4 pièces
  • 3 chambres
  • Surface maison 94 m2

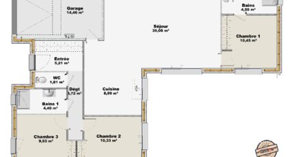
VENTE : maison de 4 pièces (94 m²) à Pont-de-l'Arche
IDÉALEMENT SITUÉE - MAISON 4 PIÈCES NEUVE
À vendre : située à 17 km de Rouen, idéalement située dans Pont-de-l'Arche (27340), nous vous proposons cette maison de 4 pièces de plain-pied de 94 m² et de 607 m² de terrain.
Elle propose trois chambres, une cuisine et deux salles de bains. La maison est neuve.
Cette maison est située dans un quartier convoité. L'École Élémentaire Maxime Marchand, l'École Maternelle les Lutins et le Collège Hyacinthe Langlois sont implantés à moins de 10 minutes à pied. Côté transports, il y a six gares à moins de 10 minutes en voiture. Les autoroutes A13 et A154 sont accessibles à moins de 7 km. On trouve un tennis, des commerces, trois boulangeries, deux supermarchés, un bureau de poste et une poissonnerie à proximité de la maison. Le marché Rue Prieur a lieu tous les dimanches matin.
Elle est proposée à l'achat pour 258 000 €.
Prenez contact avec notre agence (Michael JOURDON : 06.43.05.84.44) pour toute information sur la maison, sur les démarches à suivre ou sur les modalités de vente. Faites de vos projets immobiliers une réalité avec Michael.

Annonce proposée par un Agent Commercial Partenaire.

Mentions légales

Terrain proposé par un partenaire foncier selon disponibilités et autorisation de publicité au prix de 98 000 €. Hors droit d'enregistrement et frais de notaire. Terrain + Maison proposés au prix de 160 000 € (Hors branchements et raccordements, papiers peints, peintures, revêtement de sol dans les chambres. Tarif modifiable sans préavis). Etiquette énergie : A. Différents modèles disponibles pour ce terrain. Assurances et garanties du constructeur (RC professionnelle, décennale, dommage ouvrage, garantie de remboursement de l'acompte, livraison à prix et délai convenu) : https://www.maisons-balency.fr/informations-legales/. HEXAOM Services est enregistré auprès de l'ORIAS en tant que Courtier en financement, Niveau 1, sous le numéro 14001345.

Contactez l'agence de Boos

02 35 80 66 66

    * Champs obligatoires

    Vos informations sont traitées par HEXAOM et transmises à un conseiller commercial qui vous contactera afin de répondre à votre demande. Les plans et images présentés sur notre site sont la propriété d’HEXAOM et ne peuvent pas être reproduits sans son accord. Pour retrouver notre politique de protection des données personnelles et exercer vos droits conformément à la « loi informatique et liberté » cliquez-ici.