Maison neuve à
Pont-de-l'Arche (27340) Référence : MJ2334915_3

Prix du projet : Maison avec Terrain

prix 311 500 €

  • 7 pièces
  • 4 chambres
  • Surface maison 160 m2

Maison de 7 pièces (160 m²) en vente à Pîtres
IDÉALEMENT SITUÉE - MAISON 7 PIÈCES NEUVE
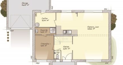
En vente : localisée à 15 km de Rouen, idéalement située dans Pîtres (27590), Maisons Balency Boos vous propose cette maison de 7 pièces de 160 m². Elle dispose de quatre chambres, d'une cuisine et de deux salles de bains.
Le terrain de la maison s'étend sur 589 m².
Cette maison comporte 2 niveaux. Elle est neuve.
Cette maison est située dans un quartier attractif. On y trouve l'École Primaire Jacques Prévert. Niveau transports, on trouve cinq gares à moins de 10 minutes en voiture. Les autoroutes A13 et A154 sont accessibles à moins de 10 km. Il y a une bibliothèque dans les environs.
Elle est proposée à l'achat pour 311 500 €.
Contactez notre agence (JOURDON Michael : 06.43.05.84.44) pour plus de renseignements sur la maison, sur les modalités de vente ou sur les démarches à suivre.

Annonce proposée par un Agent Commercial Partenaire.

Mentions légales

Terrain proposé par un partenaire foncier selon disponibilités et autorisation de publicité au prix de 67 500 €. Hors droit d'enregistrement et frais de notaire. Terrain + Maison proposés au prix de 244 000 € (Hors branchements et raccordements, papiers peints, peintures, revêtement de sol dans les chambres. Tarif modifiable sans préavis). Etiquette énergie : A. Différents modèles disponibles pour ce terrain. Assurances et garanties du constructeur (RC professionnelle, décennale, dommage ouvrage, garantie de remboursement de l'acompte, livraison à prix et délai convenu) : https://www.maisons-balency.fr/informations-legales/. HEXAOM Services est enregistré auprès de l'ORIAS en tant que Courtier en financement, Niveau 1, sous le numéro 14001345.

Contactez l'agence de Boos

02 35 80 66 66

    * Champs obligatoires

    Vos informations sont traitées par HEXAOM et transmises à un conseiller commercial qui vous contactera afin de répondre à votre demande. Les plans et images présentés sur notre site sont la propriété d’HEXAOM et ne peuvent pas être reproduits sans son accord. Pour retrouver notre politique de protection des données personnelles et exercer vos droits conformément à la « loi informatique et liberté » cliquez-ici.