Maison neuve à
Pont-de-l'Arche (27340) Référence : MJ2364166_1

Prix du projet : Maison avec Terrain

prix 269 000 €

  • 5 pièces
  • 3 chambres
  • Surface maison 90 m2

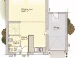
Maison de 5 pièces (90 m²) à vendre à Pont-de-l'Arche
QUARTIER RECHERCHÉ - MAISON 5 PIÈCES NEUVE
En vente : à deux pas de Rouen, Maisons Balency Boos vous présente, située dans un quartier attractif de Pont-de-l'Arche (27340), cette maison de 5 pièces de 90 m².
Cette maison possède 2 niveaux. Elle est composée de trois chambres, d'une cuisine et d'une salle de bains. Cette maison est neuve.
Le terrain du bien est de 626 m².
La maison est située dans un secteur recherché. L'École Élémentaire Maxime Marchand, l'École Maternelle les Lutins et le Collège Hyacinthe Langlois sont implantés à moins de 10 minutes à pied. Niveau transports, il y a six gares à moins de 10 minutes en voiture. Les autoroutes A13 et A154 sont accessibles à moins de 7 km. On trouve un tennis, des commerces, trois boulangeries, deux supermarchés, trois boucheries-charcuteries et une poissonnerie à quelques minutes à peine. Ne manquez pas le marché Rue Prieur chaque dimanche matin.
Elle est à vendre pour la somme de 269 000 €.
Contactez notre agence (JOURDON Michael : 06.43.05.84.44) pour tout renseignement sur la propriété et sur les modalités de vente.

Annonce proposée par un Agent Commercial Partenaire.

Mentions légales

Terrain proposé par un partenaire foncier selon disponibilités et autorisation de publicité au prix de 92 500 €. Hors droit d'enregistrement et frais de notaire. Terrain + Maison proposés au prix de 269 000 € (Hors branchements et raccordements, papiers peints, peintures, revêtement de sol dans les chambres. Tarif modifiable sans préavis). Etiquette énergie : A. Différents modèles disponibles pour ce terrain. Assurances et garanties du constructeur (RC professionnelle, décennale, dommage ouvrage, garantie de remboursement de l'acompte, livraison à prix et délai convenu) : https://www.maisons-balency.fr/informations-legales/. HEXAOM Services est enregistré auprès de l'ORIAS en tant que Courtier en financement, Niveau 1, sous le numéro 14001345.

Contactez l'agence de Boos

02 35 80 66 66

    * Champs obligatoires

    Vos informations sont traitées par HEXAOM et transmises à un conseiller commercial qui vous contactera afin de répondre à votre demande. Les plans et images présentés sur notre site sont la propriété d’HEXAOM et ne peuvent pas être reproduits sans son accord. Pour retrouver notre politique de protection des données personnelles et exercer vos droits conformément à la « loi informatique et liberté » cliquez-ici.