Maison neuve à
Pont-de-l'Arche (27340) Référence : SEMA9061_12

Prix du projet : Maison avec Terrain

prix 184 000 €

  • 4 pièces
  • 2 chambres
  • Surface maison 50 m2

VENTE d'une maison F4 (49 m²) à Pont-de-l'Arche
PROCHE DE ROUEN - MAISON 4 PIÈCES NEUVE
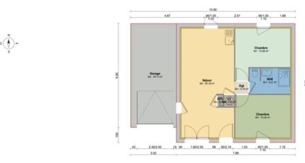
À vendre : localisée à deux pas de Rouen, votre agence Maisons Balency Boos est heureuse de vous présenter à Pont-de-l'Arche (27340), cette maison de 4 pièces de plain-pied de 49 m² et de 1 000 m² de terrain. Conçue de plain-pied, elle est composée de deux chambres, d'une cuisine et d'une salle de bains.
Cette maison est neuve.
L'École Élémentaire Maxime Marchand, l'École Maternelle les Lutins et le Collège Hyacinthe Langlois sont implantés à moins de 10 minutes à pied. Côté transports en commun, on trouve six gares à moins de 10 minutes en voiture. Les autoroutes A13 et A154 sont accessibles à moins de 7 km. Il y a un tennis, des commerces, trois boulangeries, deux supermarchés, une épicerie et un bureau de poste dans les environs. Ne manquez pas le marché Rue Prieur tous les dimanches matin.
Son prix de vente est de 184 000 €.
Contactez Sébastien MASSON (tél : 06-23-38-14-17) pour obtenir de plus amples informations sur la maison. Maisons Balency Boos vous accompagne dans toutes vos démarches et à toutes les étapes de votre projet.

Annonce proposée par un Agent Commercial Partenaire.

Mentions légales

Terrain proposé par un partenaire foncier selon disponibilités et autorisation de publicité au prix de 77 000 €. Hors droit d'enregistrement et frais de notaire. Terrain + Maison proposés au prix de 184 000 € (Hors branchements et raccordements, papiers peints, peintures, revêtement de sol dans les chambres. Tarif modifiable sans préavis). Etiquette énergie : A. Différents modèles disponibles pour ce terrain. Assurances et garanties du constructeur (RC professionnelle, décennale, dommage ouvrage, garantie de remboursement de l'acompte, livraison à prix et délai convenu) : https://www.maisons-balency.fr/informations-legales/. HEXAOM Services est enregistré auprès de l'ORIAS en tant que Courtier en financement, Niveau 1, sous le numéro 14001345.

Contactez l'agence de Boos

02 35 80 66 66

    * Champs obligatoires

    Vos informations sont traitées par HEXAOM et transmises à un conseiller commercial qui vous contactera afin de répondre à votre demande. Les plans et images présentés sur notre site sont la propriété d’HEXAOM et ne peuvent pas être reproduits sans son accord. Pour retrouver notre politique de protection des données personnelles et exercer vos droits conformément à la « loi informatique et liberté » cliquez-ici.