Maison neuve à
Pont-de-l'Arche (27340) Référence : SEMA9061_8

Prix du projet : Maison avec Terrain

prix 252 000 €

  • 7 pièces
  • 4 chambres
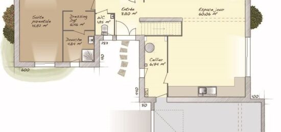
  • Surface maison 91 m2

VENTE d'une maison T7 (91 m²) à Pont-de-l'Arche
PROCHE DE ROUEN - MAISON 7 PIÈCES NEUVE
À 17 km de Rouen, en vente à Pont-de-l'Arche (27340), laissez vous charmer par cette maison de 7 pièces de 91 m². Son intérieur compte quatre chambres, une cuisine et une salle de bains.
Le terrain du bien s'étend sur 1 000 m².
Cette maison possède 2 niveaux. Elle est neuve.
On trouve l'École Élémentaire Maxime Marchand, l'École Maternelle les Lutins et le Collège Hyacinthe Langlois à moins de 10 minutes à pied. Côté transports, il y a six gares à moins de 10 minutes en voiture. Les autoroutes A13 et A154 sont accessibles à moins de 7 km. On trouve un tennis, des commerces, trois boulangeries, deux supermarchés, trois boucheries-charcuteries et une épicerie à quelques minutes. Enfin, le marché Rue Prieur a lieu chaque dimanche matin.
Elle est à vendre pour la somme de 252 000 €.
N'hésitez pas à prendre contact avec notre agence (Sébastien MASSON : 06-23-38-14-17) pour obtenir de plus amples renseignements sur la maison, sur les modalités de vente ou sur les démarches à suivre.

Annonce proposée par un Agent Commercial Partenaire.

Mentions légales

Terrain proposé par un partenaire foncier selon disponibilités et autorisation de publicité au prix de 77 000 €. Hors droit d'enregistrement et frais de notaire. Terrain + Maison proposés au prix de 252 000 € (Hors branchements et raccordements, papiers peints, peintures, revêtement de sol dans les chambres. Tarif modifiable sans préavis). Etiquette énergie : A. Différents modèles disponibles pour ce terrain. Assurances et garanties du constructeur (RC professionnelle, décennale, dommage ouvrage, garantie de remboursement de l'acompte, livraison à prix et délai convenu) : https://www.maisons-balency.fr/informations-legales/. HEXAOM Services est enregistré auprès de l'ORIAS en tant que Courtier en financement, Niveau 1, sous le numéro 14001345.

Contactez l'agence de Boos

02 35 80 66 66

    * Champs obligatoires

    Vos informations sont traitées par HEXAOM et transmises à un conseiller commercial qui vous contactera afin de répondre à votre demande. Les plans et images présentés sur notre site sont la propriété d’HEXAOM et ne peuvent pas être reproduits sans son accord. Pour retrouver notre politique de protection des données personnelles et exercer vos droits conformément à la « loi informatique et liberté » cliquez-ici.