Maison neuve à
Pont-Saint-Pierre (27360) Référence : KXA2335624_3

Prix du projet : Maison avec Terrain

prix 385 000 €

  • 7 pièces
  • 4 chambres
  • Surface maison 160 m2

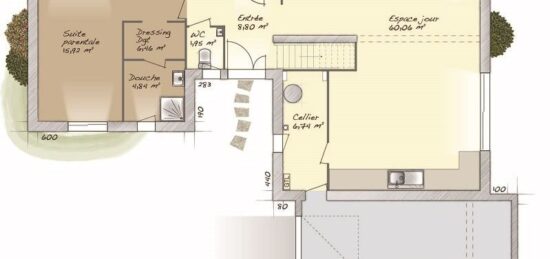
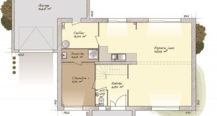
VENTE : maison F7 (160 m²) à Pont-Saint-Pierre
MAISON 7 PIÈCES NEUVE - PROCHE DE ROUEN
À 18 km de Rouen, nous vous proposons à vendre à Pont-Saint-Pierre (27360), cette maison de 7 pièces de 160 m².
Cette maison comporte 2 niveaux. Elle est composée de quatre chambres, d'une cuisine et de deux salles de bains. Cette maison est neuve.
Le terrain de la propriété s'étend sur 880 m².
Une école maternelle est implantée dans le quartier. Côté transports en commun, il y a deux gares (Val-de-Reuil et Pont-de-l'Arche) à moins de 10 minutes en voiture. Des autoroutes et des nationales sont accessibles à moins de 20 km. On trouve une boucherie-charcuterie à quelques minutes.
Son prix de vente est de 385 000 €.
N'hésitez pas à prendre contact avec notre agence (XAVIER ALVES Kévin : 06-58-91-13-87) pour toute information sur la propriété, sur les modalités de vente ou sur les démarches à suivre. Maisons Balency Boos vous accompagne dans tous vos projets immobiliers et dans toutes vos démarches.

Annonce proposée par un Agent Commercial Partenaire.

Mentions légales

Terrain proposé par un partenaire foncier selon disponibilités et autorisation de publicité au prix de 71 000 €. Hors droit d'enregistrement et frais de notaire. Terrain + Maison proposés au prix de 314 000 € (Hors branchements et raccordements, papiers peints, peintures, revêtement de sol dans les chambres. Tarif modifiable sans préavis). Etiquette énergie : A. Différents modèles disponibles pour ce terrain. Assurances et garanties du constructeur (RC professionnelle, décennale, dommage ouvrage, garantie de remboursement de l'acompte, livraison à prix et délai convenu) : https://www.maisons-balency.fr/informations-legales/. HEXAOM Services est enregistré auprès de l'ORIAS en tant que Courtier en financement, Niveau 1, sous le numéro 14001345.

Contactez l'agence de Boos

02 35 80 66 66

    * Champs obligatoires

    Vos informations sont traitées par HEXAOM et transmises à un conseiller commercial qui vous contactera afin de répondre à votre demande. Les plans et images présentés sur notre site sont la propriété d’HEXAOM et ne peuvent pas être reproduits sans son accord. Pour retrouver notre politique de protection des données personnelles et exercer vos droits conformément à la « loi informatique et liberté » cliquez-ici.