Maison neuve à
Pont-Sainte-Maxence
(60700) Référence :
AF2455628_3
Prix du projet : Maison avec Terrain
prix 280 000 €
- 6 pièces
- 4 chambres
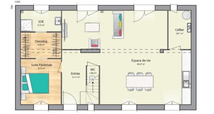
- Surface maison 105 m2
VENTE d'une maison F6 (105 m²) à Pont-Sainte-Maxence
PROCHE DE COMPIÈGNE - MAISON 6 PIÈCES NEUVE
À 20 km de Compiègne, découvrez en vente à Pont-Sainte-Maxence (60700), cette maison de 6 pièces de 105 m² et de 600 m² de terrain.
C'est une maison de 2 niveaux. Elle comporte quatre chambres, une cuisine et deux salles de bains. La maison est neuve.
Des établissements scolaires de tous types sont implantés à moins de 10 minutes à pied, tout comme une structure d'accueil pour la petite enfance. Côté transports, il y a cinq gares à moins de 10 minutes en voiture. L'autoroute A1 et la nationale N31 sont accessibles à moins de 10 km. On trouve une bibliothèque, un tennis, des commerces, un bureau de poste, deux boucheries-charcuteries et deux épiceries à proximité. Ne manquez pas le marché Place Leclerc chaque vendredi matin.
Son prix de vente est de 280 000 €.
N'hésitez pas à prendre contact avec Antoine FLIPPE (07-82-59-37-75) pour toute information sur cette maison, sur les démarches à suivre ou sur les modalités de vente. Concrétisez vos projets immobiliers avec Maisons Balency Baillet-en-France.
Annonce proposée par un Agent Commercial Partenaire.
Mentions légales
Terrain proposé par un partenaire foncier selon disponibilités et autorisation de publicité au prix de 85 000 €. Hors droit d'enregistrement et frais de notaire. Terrain + Maison proposés au prix de 280 000 € (Hors branchements et raccordements, papiers peints, peintures, revêtement de sol dans les chambres. Tarif modifiable sans préavis). Etiquette énergie : A. Différents modèles disponibles pour ce terrain. Assurances et garanties du constructeur (RC professionnelle, décennale, dommage ouvrage, garantie de remboursement de l'acompte, livraison à prix et délai convenu) : https://www.maisons-balency.fr/informations-legales/. HEXAOM Services est enregistré auprès de l'ORIAS en tant que Courtier en financement, Niveau 1, sous le numéro 14001345.Agence Maisons Balency de Baillet-en-France (95560)
- Téléphone :
- 01 34 46 05 23
- Adressse :
- 81 rue de Paris
95560 Baillet-en-France, France
