Maison neuve à
Pontoise (95300) Référence : DD2359530_1

Prix du projet : Maison avec Terrain

prix 666 540 €

  • 8 pièces
  • 5 chambres
  • Surface maison 145 m2

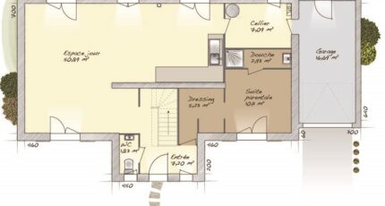
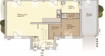
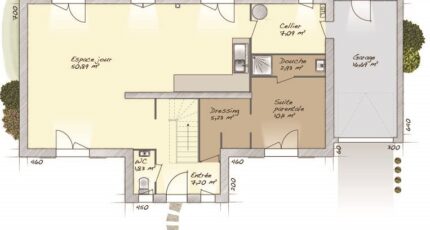
VENTE : maison de 8 pièces (145 m²) à Pontoise
MAISON 8 PIÈCES NEUVE
En vente : à quelques minutes du Transilien J (gare d'Osny, 40 min de Paris), Maisons Balency Pontoise vous présente à Pontoise (95300), cette maison de 8 pièces de 145 m². Elle comporte cinq chambres, une cuisine et trois salles de bains.
Le terrain du bien s'étend sur 899 m².
Cette maison possède 2 niveaux. Elle est neuve.
Une école élémentaire est implantée dans le quartier. Niveau transports en commun, il y a les lignes C et A du RER ainsi que 23 gares à moins de 10 minutes en voiture.
Elle est à vendre pour la somme de 666 540 €.
N'hésitez pas à prendre contact avec Denis DUCOS (06-80-06-50-40) pour plus d'informations sur la maison. Concrétisez vos projets immobiliers avec Maisons Balency Pontoise.

Annonce proposée par un Agent Commercial Partenaire.

Mentions légales

Terrain proposé par un partenaire foncier selon disponibilités et autorisation de publicité au prix de 316 000 €. Hors droit d'enregistrement et frais de notaire. Terrain + Maison proposés au prix de 350 540 € (Hors branchements et raccordements, papiers peints, peintures, revêtement de sol dans les chambres. Tarif modifiable sans préavis). Etiquette énergie : A. Différents modèles disponibles pour ce terrain. Assurances et garanties du constructeur (RC professionnelle, décennale, dommage ouvrage, garantie de remboursement de l'acompte, livraison à prix et délai convenu) : https://www.maisons-balency.fr/informations-legales/. HEXAOM Services est enregistré auprès de l'ORIAS en tant que Courtier en financement, Niveau 1, sous le numéro 14001345.

Contactez l'agence de Pontoise

01 39 91 70 10

    * Champs obligatoires

    Vos informations sont traitées par HEXAOM et transmises à un conseiller commercial qui vous contactera afin de répondre à votre demande. Les plans et images présentés sur notre site sont la propriété d’HEXAOM et ne peuvent pas être reproduits sans son accord. Pour retrouver notre politique de protection des données personnelles et exercer vos droits conformément à la « loi informatique et liberté » cliquez-ici.