Maison neuve à
Pontpoint
(60700) Référence :
AM2412327_1
Prix du projet : Maison avec Terrain
prix 275 000 €
- 6 pièces
- 4 chambres
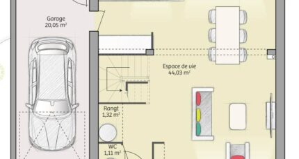
- Surface maison 91 m2
VENTE d'une maison de 6 pièces (91 m²) à Pontpoint
PROCHE DE COMPIÈGNE - MAISON 6 PIÈCES NEUVE
En vente à deux pas de Compiègne, nous sommes ravis de vous proposer à Pontpoint (60700), cette maison de 6 pièces de 91 m² et de 510 m² de terrain. Son intérieur offre quatre chambres, une cuisine et une salle de bains.
C'est une maison de 2 niveaux. Elle est neuve.
L'École Primaire Chadufaux-Massé, l'École Maternelle Pierre Masse et l'École Primaire Rostand-Lhermite se trouvent à moins de 10 minutes à pied. Côté transports en commun, il y a quatre gares à moins de 10 minutes en voiture. Il y a un accès à l'autoroute A1 à 4 km. On trouve deux boulangeries à quelques minutes.
Elle est proposée à l'achat pour 275 000 €.
Contactez Aurelien MONTANIER (tél : 06-24-66-88-34) pour tout renseignement sur la maison ou sur les démarches à suivre. Donnez vie à vos projets immobiliers avec Maisons Balency Saint-Maur-des-Fossés.
Annonce proposée par un Agent Commercial Partenaire.
Mentions légales
Terrain proposé par un partenaire foncier selon disponibilités et autorisation de publicité au prix de 90 000 €. Hors droit d'enregistrement et frais de notaire. Terrain + Maison proposés au prix de 275 000 € (Hors branchements et raccordements, papiers peints, peintures, revêtement de sol dans les chambres. Tarif modifiable sans préavis). Etiquette énergie : A. Différents modèles disponibles pour ce terrain. Assurances et garanties du constructeur (RC professionnelle, décennale, dommage ouvrage, garantie de remboursement de l'acompte, livraison à prix et délai convenu) : https://www.maisons-balency.fr/informations-legales/. HEXAOM Services est enregistré auprès de l'ORIAS en tant que Courtier en financement, Niveau 1, sous le numéro 14001345.Agence Maisons Balency de Saint-Maur-des-Fossés (94100)
- Téléphone :
- 01 87 36 85 37
- Adressse :
- 12 avenue de la république
94100 Saint-Maur-des-Fossés, France
