Maison neuve à
Pontpoint
(60700) Référence :
AF2455613_5
Prix du projet : Maison avec Terrain
prix 285 000 €
- 6 pièces
- 4 chambres
- Surface maison 105 m2
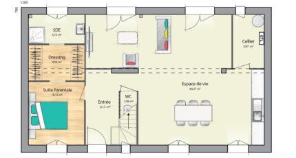
VENTE : maison F6 (105 m²) à Pontpoint
PROCHE DE COMPIÈGNE - MAISON 6 PIÈCES NEUVE
À deux pas de Compiègne, en vente à Pontpoint (60700), votre agence Maisons Balency Baillet-en-France est ravie de vous présenter cette maison de 6 pièces de 105 m².
Cette maison possède 2 niveaux. Son intérieur est composé de quatre chambres, d'une cuisine et de deux salles de bains. Cette maison est neuve.
Le terrain de la propriété est de 430 m².
L'École Primaire Massé-Chadufaux et l'École Primaire Rostand-Lhermite sont implantées à moins de 10 minutes à pied. Niveau transports en commun, on trouve quatre gares à moins de 10 minutes en voiture. On trouve un accès à l'autoroute A1 à 4 km.
Son prix de vente est de 285 000 €.
Contactez Antoine FLIPPE (tél : 07-82-59-37-75) pour toute question sur le bien. Maisons Balency Baillet-en-France vous accompagne à toutes les étapes de votre projet et dans toutes vos démarches.
Annonce proposée par un Agent Commercial Partenaire.
Mentions légales
Terrain proposé par un partenaire foncier selon disponibilités et autorisation de publicité au prix de 85 000 €. Hors droit d'enregistrement et frais de notaire. Terrain + Maison proposés au prix de 285 000 € (Hors branchements et raccordements, papiers peints, peintures, revêtement de sol dans les chambres. Tarif modifiable sans préavis). Etiquette énergie : A. Différents modèles disponibles pour ce terrain. Assurances et garanties du constructeur (RC professionnelle, décennale, dommage ouvrage, garantie de remboursement de l'acompte, livraison à prix et délai convenu) : https://www.maisons-balency.fr/informations-legales/. HEXAOM Services est enregistré auprès de l'ORIAS en tant que Courtier en financement, Niveau 1, sous le numéro 14001345.Agence Maisons Balency de Baillet-en-France (95560)
- Téléphone :
- 01 34 46 05 23
- Adressse :
- 81 rue de Paris
95560 Baillet-en-France, France
