Maison neuve à
Port-Mort (27940) Référence : KG2252329_1

Prix du projet : Maison avec Terrain

prix 216 000 €

  • 6 pièces
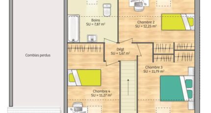
  • 4 chambres
  • Surface maison 89 m2

VENTE : maison T6 (89 m²) à Port-Mort
MAISON 6 PIÈCES NEUVE - PROCHE D'ÉVREUX
Maison au style contemporain qui offre quatre chambres, dont une au RDC. A l'étage, les 3 autres chambres accompagnées d'une salle de bain et de WC. Lorsque vous entrez dans la grande pièce de vie ouverte, vous découvrez sur un grand séjour lumineux avec ses baies coulissantes en alu, une cuisine donnant sur la salle a manger et un cellier en arrière cuisine. Cette construction dispose de prestations de qualité ; chauffage par pompe a chaleur, répondant aux normes RE2020 en vigueurs, menuiseries alu laquées ou en PVC avec volets roulant électriques, domotique et centralisation, carrelage design dans la gamme constructeur, choix des portes intérieures, des appuis de fenêtres, couverture en terre cuite ou en ardoise...
Les finitions de ce modèle seront une véritable source de fierté.
N'hésitez pas à prendre contact avec Karen GOHIER (06 71 52 61 13) pour toute information sur la maison, sur les démarches à suivre ou sur les modalités de vente. Donnez vie à vos projets immobiliers avec Maisons Balency Louviers.

Annonce proposée par un Agent Commercial Partenaire.

Mentions légales

Terrain proposé par un partenaire foncier selon disponibilités et autorisation de publicité au prix de 62 000 €. Hors droit d'enregistrement et frais de notaire. Maison proposée, avec un contrat de construction de maison individuelle, dans le cadre de la loi du 19/12/1990, au prix de 154 000 € (Hors branchements et raccordements, papiers peints, peintures, revêtement de sol dans les chambres, qui sont chiffrés dans les travaux qui restent à charge du client. Tarif modifiable sans préavis). Étiquette énergie : A. Différents modèles disponibles pour ce terrain. Assurances et garanties du constructeur comprises (RC professionnelle, décennale, dommage ouvrage).

Contactez l'agence de Louviers

02 32 51 43 53

    * Champs obligatoires

    Vos informations sont traitées par HEXAOM et transmises à un conseiller commercial qui vous contactera afin de répondre à votre demande. Les plans et images présentés sur notre site sont la propriété d’HEXAOM et ne peuvent pas être reproduits sans son accord. Pour retrouver notre politique de protection des données personnelles et exercer vos droits conformément à la « loi informatique et liberté » cliquez-ici.