Maison neuve à
Port-Mort (27940) Référence : EL2306779_5

Prix du projet : Maison avec Terrain

prix 280 000 €

  • 6 pièces
  • 4 chambres
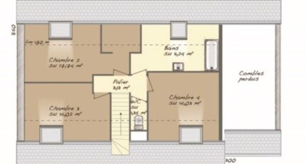
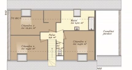
  • Surface maison 117 m2

Port-Mort : maison T6 (117 m²) à vendre
IDÉALEMENT SITUÉE - MAISON 6 PIÈCES NEUVE
En vente : à deux pas du Transilien J (gare de Vernon-Giverny, 1 h de Paris), idéalement située dans Port-Mort (27940), nous vous proposons cette maison de 6 pièces de plain-pied de 117 m². Elle offre quatre chambres, une cuisine et deux salles de bains.
Le terrain de cette maison s'étend sur 738 m².
La maison est neuve.
La maison est située dans un secteur recherché. Une école primaire y est implantée. Côté transports, on trouve deux gares (Gaillon-Aubevoye et Vernon-Giverny) à moins de 10 minutes en voiture. On trouve un accès à l'autoroute A13 à 8 km et Évreux est située à 26 km. Il y a une boulangerie, un commerce et une boucherie-charcuterie à proximité.
Son prix de vente est de 280 000 €.
N'hésitez pas à prendre contact avec notre agence (Dany LEOVANT : 06-09-43-87-49) pour toute information sur la maison, sur les démarches à suivre ou sur les modalités de vente. Faites de vos projets immobiliers une réalité avec Maisons Balency Boos.

Annonce proposée par un Agent Commercial Partenaire.

Mentions légales

Terrain proposé par un partenaire foncier selon disponibilités et autorisation de publicité au prix de 62 500 €. Hors droit d'enregistrement et frais de notaire. Terrain + Maison proposés au prix de 217 500 € (Hors branchements et raccordements, papiers peints, peintures, revêtement de sol dans les chambres. Tarif modifiable sans préavis). Etiquette énergie : A. Différents modèles disponibles pour ce terrain. Assurances et garanties du constructeur (RC professionnelle, décennale, dommage ouvrage, garantie de remboursement de l'acompte, livraison à prix et délai convenu) : https://www.maisons-balency.fr/informations-legales/. HEXAOM Services est enregistré auprès de l'ORIAS en tant que Courtier en financement, Niveau 1, sous le numéro 14001345.

Contactez l'agence de Boos

02 35 80 66 66

    * Champs obligatoires

    Vos informations sont traitées par HEXAOM et transmises à un conseiller commercial qui vous contactera afin de répondre à votre demande. Les plans et images présentés sur notre site sont la propriété d’HEXAOM et ne peuvent pas être reproduits sans son accord. Pour retrouver notre politique de protection des données personnelles et exercer vos droits conformément à la « loi informatique et liberté » cliquez-ici.