Maison neuve à
Pouzolles (34480) Référence : HM2327312_5

Prix du projet : Maison avec Terrain

prix 347 000 €

  • 5 pièces
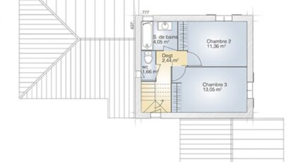
  • 3 chambres
  • Surface maison 105 m2

Maison de 5 pièces (105 m²) à vendre à Pouzolles
IDÉALEMENT SITUÉE - MAISON 5 PIÈCES NEUVE
En vente : localisée à 24 km de la mer Méditerranée et à 14 km de Béziers, nous sommes ravis de vous présenter, idéalement située dans Pouzolles (34480), cette maison de 5 pièces de 105 m². Elle dispose de trois chambres, d'une cuisine et d'une salle de bains.
Le terrain de cette maison s'étend sur 450 m².
C'est une maison de 2 niveaux. Elle est neuve.
La maison se trouve dans un secteur prisé. Une école primaire y est implantée. Niveau transports, il y a la gare Magalas à moins de 10 minutes en voiture. L'autoroute A75 est accessible à 10 km. On trouve une bibliothèque, un tennis, une boulangerie et une épicerie à quelques minutes à peine.
Son prix de vente est de 347 000 €.
N'hésitez pas à prendre contact avec Hervé MALDONADO (06-72-60-44-42) pour toute information sur la maison, sur les modalités de vente ou sur les démarches à suivre. Maisons Balency Pézenas vous accompagne dans tous vos projets immobiliers et à toutes les étapes de votre projet.

Mentions légales

Terrain proposé par un partenaire foncier selon disponibilités et autorisation de publicité au prix de 96 300 €. Hors droit d'enregistrement et frais de notaire. Terrain + Maison proposés au prix de 250 700 € (Hors branchements et raccordements, papiers peints, peintures, revêtement de sol dans les chambres. Tarif modifiable sans préavis). Etiquette énergie : A. Différents modèles disponibles pour ce terrain. Assurances et garanties du constructeur (RC professionnelle, décennale, dommage ouvrage, garantie de remboursement de l'acompte, livraison à prix et délai convenu) : https://www.maisons-balency.fr/informations-legales/. HEXAOM Services est enregistré auprès de l'ORIAS en tant que Courtier en financement, Niveau 1, sous le numéro 14001345.

Contactez l'agence de Pézenas

04 99 43 05 21

    * Champs obligatoires

    Vos informations sont traitées par HEXAOM et transmises à un conseiller commercial qui vous contactera afin de répondre à votre demande. Les plans et images présentés sur notre site sont la propriété d’HEXAOM et ne peuvent pas être reproduits sans son accord. Pour retrouver notre politique de protection des données personnelles et exercer vos droits conformément à la « loi informatique et liberté » cliquez-ici.