Maison neuve à
Pouzolles (34480) Référence : HM2327331_1

Prix du projet : Maison avec Terrain

prix 351 000 €

  • 5 pièces
  • 3 chambres
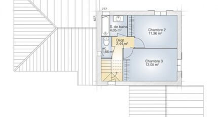
  • Surface maison 105 m2

Maison de 5 pièces (105 m²) en vente à Pouzolles
IDÉALEMENT SITUÉE - MAISON 5 PIÈCES NEUVE
À vendre : localisée à 24 km de la mer Méditerranée et à quelques kilomètres de Béziers, nous vous présentons, idéalement située dans Pouzolles (34480), cette maison de 5 pièces de 105 m².
Il s'agit d'une maison de 2 niveaux. Elle compte trois chambres, une cuisine et une salle de bains. Cette maison est neuve.
Le terrain du bien est de 490 m².
Cette maison se trouve dans un quartier attractif. Une école primaire y est implantée. Niveau transports, il y a la gare Magalas à moins de 10 minutes en voiture. On trouve un accès à l'autoroute A75 à 10 km. On trouve une bibliothèque, un tennis, une boulangerie et une épicerie à proximité de la maison.
Elle est proposée à l'achat pour 351 000 €.
Contactez Hervé MALDONADO (tél : 06-72-60-44-42) pour toute information sur la maison. Faites de vos projets immobiliers une réalité avec Maisons Balency Pézenas.

Mentions légales

Terrain proposé par un partenaire foncier selon disponibilités et autorisation de publicité au prix de 99 500 €. Hors droit d'enregistrement et frais de notaire. Terrain + Maison proposés au prix de 251 500 € (Hors branchements et raccordements, papiers peints, peintures, revêtement de sol dans les chambres. Tarif modifiable sans préavis). Etiquette énergie : A. Différents modèles disponibles pour ce terrain. Assurances et garanties du constructeur (RC professionnelle, décennale, dommage ouvrage, garantie de remboursement de l'acompte, livraison à prix et délai convenu) : https://www.maisons-balency.fr/informations-legales/. HEXAOM Services est enregistré auprès de l'ORIAS en tant que Courtier en financement, Niveau 1, sous le numéro 14001345.

Contactez l'agence de Pézenas

04 99 43 05 21

    * Champs obligatoires

    Vos informations sont traitées par HEXAOM et transmises à un conseiller commercial qui vous contactera afin de répondre à votre demande. Les plans et images présentés sur notre site sont la propriété d’HEXAOM et ne peuvent pas être reproduits sans son accord. Pour retrouver notre politique de protection des données personnelles et exercer vos droits conformément à la « loi informatique et liberté » cliquez-ici.