Maison neuve à
Presles
(95590) Référence :
AD2301198_1
Prix du projet : Maison avec Terrain
prix 625 800 €
- 7 pièces
- 5 chambres
- Surface maison 170 m2
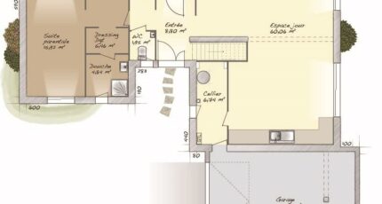
VENTE d'une maison T7 (170 m²) à Presles
PROCHE DE PARIS - MAISON 7 PIÈCES NEUVE
À proximité de la gare, notre agence Maisons Balency Coignières est heureuse de vous proposer cette maison de 7 pièces de plain-pied de 170 m² à vendre à Presles (95590).
Conçue de plain-pied, elle se divise en cinq chambres, une cuisine et trois salles de bains. Cette maison est neuve.
Le terrain de la propriété est de 830 m².
Des établissements scolaires primaires sont implantés à moins de 10 minutes à pied, tout comme une crèche. Niveau transports en commun, il y a la gare Presles Courcelles dans un rayon de 1 km, mettant Paris à 35 min de la maison en transilien. On trouve une bibliothèque, un tennis, trois commerces et un bureau de poste à quelques minutes à peine.
Elle est à vendre pour la somme de 625 800 €.
N'hésitez pas à prendre contact avec notre constructeur (Arnaud DUTEURTRE : 06-13-43-01-46) pour plus d'informations sur la maison.
Annonce proposée par un Agent Commercial Partenaire.
Mentions légales
Terrain proposé par un partenaire foncier selon disponibilités et autorisation de publicité au prix de 260 000 €. Hors droit d'enregistrement et frais de notaire. Maison proposée, avec un contrat de construction de maison individuelle, dans le cadre de la loi du 19/12/1990, au prix de 365 800 € (Hors branchements et raccordements, papiers peints, peintures, revêtement de sol dans les chambres, qui sont chiffrés dans les travaux qui restent à charge du client. Tarif modifiable sans préavis). Étiquette énergie : A. Différents modèles disponibles pour ce terrain. Assurances et garanties du constructeur comprises (RC professionnelle, décennale, dommage ouvrage).Agence Maisons Balency de Coignières (78310)
- Téléphone :
- 01 34 61 42 59
- Adressse :
- Domexpo Ouest
78310 Coignières, France
