Maison neuve à
Presles
(95590) Référence :
CT2346565_1
Prix du projet : Maison avec Terrain
prix 362 500 €
- 7 pièces
- 6 chambres
- Surface maison 104 m2
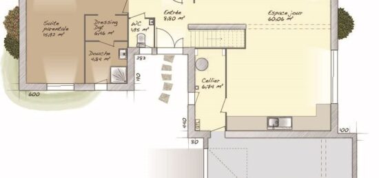
VENTE d'une maison T7 (104 m²) à Presles
IDÉALEMENT SITUÉE - MAISON 7 PIÈCES NEUVE
En vente : à proximité de la gare, découvrez cette maison de 7 pièces de 104 m² avec vue sur jardin idéalement située dans Presles (95590). Son intérieur est composé de six chambres, d'une cuisine et de deux salles de bains.
Le terrain de cette maison s'étend sur 550 m².
Cette maison compte 2 niveaux. Elle est neuve.
La maison est située dans un secteur prisé. Il y a des écoles maternelles et élémentaires à moins de 10 minutes à pied et une crèche. Niveau transports en commun, on trouve la gare Presles Courcelles à proximité, positionnant la maison à 35 min de Paris en transilien. On trouve une bibliothèque, un tennis, trois commerces et un bureau de poste à quelques minutes du bien.
Son prix de vente est de 362 500 €.
N'hésitez pas à prendre contact avec notre agence (TALAMONI Christophe : 06-49-55-08-27) pour plus d'informations sur ce bien ou sur les démarches à suivre. Maisons Balency Baillet-en-France vous accompagne à toutes les étapes de l'achat et dans tous vos projets immobiliers.
Annonce proposée par un Agent Commercial Partenaire.
Mentions légales
Terrain proposé par un partenaire foncier selon disponibilités et autorisation de publicité au prix de 169 000 €. Hors droit d'enregistrement et frais de notaire. Terrain + Maison proposés au prix de 193 500 € (Hors branchements et raccordements, papiers peints, peintures, revêtement de sol dans les chambres. Tarif modifiable sans préavis). Etiquette énergie : A. Différents modèles disponibles pour ce terrain. Assurances et garanties du constructeur (RC professionnelle, décennale, dommage ouvrage, garantie de remboursement de l'acompte, livraison à prix et délai convenu) : https://www.maisons-balency.fr/informations-legales/. HEXAOM Services est enregistré auprès de l'ORIAS en tant que Courtier en financement, Niveau 1, sous le numéro 14001345.Agence Maisons Balency de Baillet-en-France (95560)
- Téléphone :
- 01 34 46 05 23
- Adressse :
- 81 rue de Paris
95560 Baillet-en-France, France
