Maison neuve à
Presles-en-Brie
(77220) Référence :
AM2321370_1
Prix du projet : Maison avec Terrain
prix 360 000 €
- 6 pièces
- 4 chambres
- Surface maison 117 m2
Maison de 6 pièces (117 m²) à vendre à Presles-en-Brie
PROCHE DE MONTREUIL - MAISON 6 PIÈCES NEUVE
À deux pas de la station Tournan (Paris à 40 min par le RER E), Maisons Balency Saint-Maur-des-Fossés vous présente cette maison de 6 pièces de plain-pied de 117 m² à Presles-en-Brie (77220).
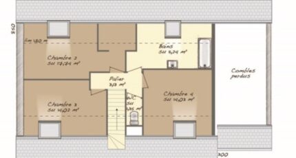
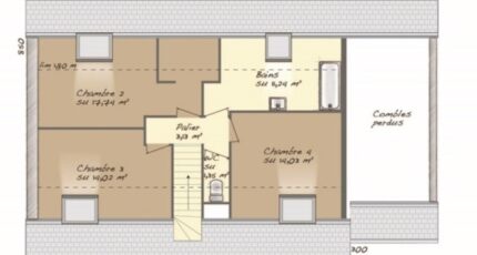
Conçue de plain-pied, elle se divise en quatre chambres, une cuisine et deux salles de bains. La maison est neuve.
Le terrain de la propriété est de 800 m².
On trouve l'École Maternelle Maurice André et l'École Élémentaire Maurice André à moins de 10 minutes à pied et une structure d'accueil pour les enfants en bas âge. Niveau transports, il y a la ligne de RER E (Tournan) ainsi que quatre gares à moins de 10 minutes en voiture. Il y a une bibliothèque, un tennis, une boulangerie, un commerce et une épicerie à quelques minutes.
Son prix de vente est de 360 000 €.
Contactez notre agence (MONTANIER Aurelien : 06-24-66-88-34) pour tout renseignement sur ce bien ou sur les démarches à suivre. Maisons Balency Saint-Maur-des-Fossés est là pour vous accompagner dans tous vos projets immobiliers.
Annonce proposée par un Agent Commercial Partenaire.
Mentions légales
Terrain proposé par un partenaire foncier selon disponibilités et autorisation de publicité au prix de 160 000 €. Hors droit d'enregistrement et frais de notaire. Maison proposée, avec un contrat de construction de maison individuelle, dans le cadre de la loi du 19/12/1990, au prix de 200 000 € (Hors branchements et raccordements, papiers peints, peintures, revêtement de sol dans les chambres, qui sont chiffrés dans les travaux qui restent à charge du client. Tarif modifiable sans préavis). Étiquette énergie : A. Différents modèles disponibles pour ce terrain. Assurances et garanties du constructeur comprises (RC professionnelle, décennale, dommage ouvrage).Agence Maisons Balency de Saint-Maur-des-Fossés (94100)
- Téléphone :
- 01 87 36 85 37
- Adressse :
- 12 avenue de la république
94100 Saint-Maur-des-Fossés, France
