Maison neuve à
Prunay-le-Temple
(78910) Référence :
TD2255566_1
Prix du projet : Maison avec Terrain
prix 668 360 €
- 7 pièces
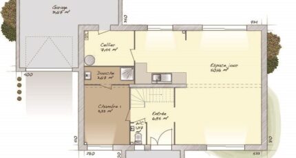
- 4 chambres
- Surface maison 160 m2
Prunay-le-Temple : maison F7 (160 m²) à vendre
IDÉALEMENT SITUÉE - MAISON 7 PIÈCES NEUVE
En vente : à côté de la gare de Tacoignières-Richebourg (Paris à 50 min par le Transilien N), laissez vous charmer par, idéalement située dans Prunay-le-Temple (78910), cette maison de 7 pièces de 160 m² avec vue sur jardin. Elle offre quatre chambres, une cuisine et deux salles de bains.
Le terrain de la propriété est de 1 000 m².
Il s'agit d'une maison de 2 niveaux. Elle est neuve.
La maison se situe dans un quartier prisé. Une école primaire y est implantée.
Elle est proposée à l'achat pour 668 360 €.
N'hésitez pas à prendre contact avec notre agence (DUTEURTRE Thibault : 06-23-41-73-81) pour tout renseignement sur la maison.
Annonce proposée par un Agent Commercial Partenaire.
Mentions légales
Terrain proposé par un partenaire foncier selon disponibilités et autorisation de publicité au prix de 280 000 €. Hors droit d'enregistrement et frais de notaire. Maison proposée, avec un contrat de construction de maison individuelle, dans le cadre de la loi du 19/12/1990, au prix de 388 360 € (Hors branchements et raccordements, papiers peints, peintures, revêtement de sol dans les chambres, qui sont chiffrés dans les travaux qui restent à charge du client. Tarif modifiable sans préavis). Étiquette énergie : A. Différents modèles disponibles pour ce terrain. Assurances et garanties du constructeur comprises (RC professionnelle, décennale, dommage ouvrage).Agence Maisons Balency de Coignières (78310)
- Téléphone :
- 01 34 61 42 59
- Adressse :
- Domexpo Ouest
78310 Coignières, France
