Maison neuve à
Quévreville-la-Poterie (76520) Référence : KXA2316797_1

Prix du projet : Maison avec Terrain

prix 160 000 €

  • 4 pièces
  • 2 chambres
  • Surface maison 50 m2

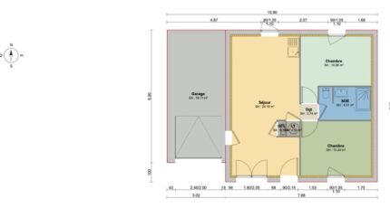
Maison F4 (49 m²) en vente à Quévreville-la-Poterie
PROCHE DE ROUEN - MAISON 4 PIÈCES NEUVE
À deux pas de Rouen, Maisons Balency Boos vous propose cette maison de 4 pièces de plain-pied de 49 m² et de 330 m² de terrain à vendre à Quévreville-la-Poterie (76520).
Conçue de plain-pied, elle offre deux chambres, une cuisine et une salle de bains. La maison est neuve.
On trouve l'École Primaire Pierre Mendès-France à moins de 10 minutes à pied. Niveau transports, il y a six gares à moins de 10 minutes en voiture. L'autoroute A13 est accessible à 8 km. On trouve une bibliothèque, un tennis et deux commerces à quelques minutes.
Son prix de vente est de 160 000 €.
Contactez Kévin XAVIER ALVES (tél : 06-58-91-13-87) pour toute question sur la propriété, sur les modalités de vente ou sur les démarches à suivre.

Annonce proposée par un Agent Commercial Partenaire.

Mentions légales

Terrain proposé par un partenaire foncier selon disponibilités et autorisation de publicité au prix de 59 900 €. Hors droit d'enregistrement et frais de notaire. Terrain + Maison proposés au prix de 160 000 € (Hors branchements et raccordements, papiers peints, peintures, revêtement de sol dans les chambres. Tarif modifiable sans préavis). Etiquette énergie : A. Différents modèles disponibles pour ce terrain. Assurances et garanties du constructeur (RC professionnelle, décennale, dommage ouvrage, garantie de remboursement de l'acompte, livraison à prix et délai convenu) : https://www.maisons-balency.fr/informations-legales/. HEXAOM Services est enregistré auprès de l'ORIAS en tant que Courtier en financement, Niveau 1, sous le numéro 14001345.

Contactez l'agence de Boos

02 35 80 66 66

    * Champs obligatoires

    Vos informations sont traitées par HEXAOM et transmises à un conseiller commercial qui vous contactera afin de répondre à votre demande. Les plans et images présentés sur notre site sont la propriété d’HEXAOM et ne peuvent pas être reproduits sans son accord. Pour retrouver notre politique de protection des données personnelles et exercer vos droits conformément à la « loi informatique et liberté » cliquez-ici.