Maison neuve à
Radepont (27380) Référence : MJ2363106_2

Prix du projet : Maison avec Terrain

prix 279 900 €

  • 6 pièces
  • 5 chambres
  • Surface maison 114 m2

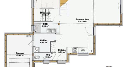
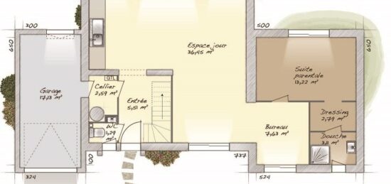
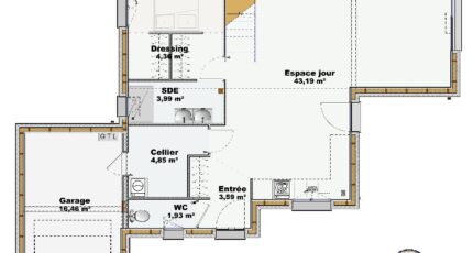
Radepont : maison de 6 pièces (114 m²) à vendre
EMPLACEMENT PRIVILÉGIÉ - MAISON 6 PIÈCES NEUVE
En vente : localisée à deux pas de Rouen, Maisons Balency Boos vous présente cette maison de 6 pièces de 114 m² bénéficiant d'un emplacement d'exception dans Radepont (27380).
Il s'agit d'une maison de 2 niveaux. Son intérieur propose cinq chambres, une cuisine et deux salles de bains. La maison est neuve.
Le terrain de la propriété est de 649 m².
La maison se situe dans un quartier recherché. L'École Primaire Georges Labbé est implantée à moins de 10 minutes à pied. Les autoroutes A13, A154 et A28 et la nationale N28 sont accessibles à moins de 20 km. On trouve une boulangerie à proximité.
Son prix de vente est de 279 900 €.
Contactez Michael JOURDON (06.43.05.84.44) pour obtenir de plus amples renseignements sur la maison. Maisons Balency Boos est là pour vous accompagner à toutes les étapes de votre projet.

Annonce proposée par un Agent Commercial Partenaire.

Mentions légales

Terrain proposé par un partenaire foncier selon disponibilités et autorisation de publicité au prix de 54 500 €. Hors droit d'enregistrement et frais de notaire. Terrain + Maison proposés au prix de 225 400 € (Hors branchements et raccordements, papiers peints, peintures, revêtement de sol dans les chambres. Tarif modifiable sans préavis). Etiquette énergie : A. Différents modèles disponibles pour ce terrain. Assurances et garanties du constructeur (RC professionnelle, décennale, dommage ouvrage, garantie de remboursement de l'acompte, livraison à prix et délai convenu) : https://www.maisons-balency.fr/informations-legales/. HEXAOM Services est enregistré auprès de l'ORIAS en tant que Courtier en financement, Niveau 1, sous le numéro 14001345.

Contactez l'agence de Boos

02 35 80 66 66

    * Champs obligatoires

    Vos informations sont traitées par HEXAOM et transmises à un conseiller commercial qui vous contactera afin de répondre à votre demande. Les plans et images présentés sur notre site sont la propriété d’HEXAOM et ne peuvent pas être reproduits sans son accord. Pour retrouver notre politique de protection des données personnelles et exercer vos droits conformément à la « loi informatique et liberté » cliquez-ici.