Maison neuve à
Rebets (76750) Référence : EL2321340_4

Prix du projet : Maison avec Terrain

prix 371 700 €

  • 7 pièces
  • 4 chambres
  • Surface maison 160 m2

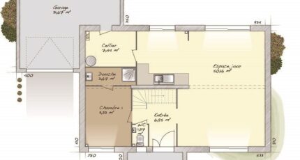
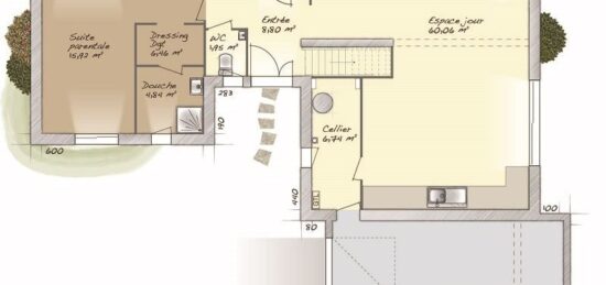
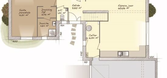
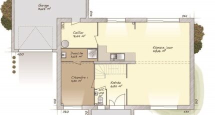
VENTE d'une maison F7 (160 m²) à Rebets
IDÉALEMENT SITUÉE - MAISON 7 PIÈCES NEUVE
À vendre : à 24 km de Rouen, idéalement située dans Rebets (76750), nous vous présentons cette maison de 7 pièces de 160 m² et de 1 000 m² de terrain. Son intérieur offre quatre chambres, une cuisine et deux salles de bains.
Cette maison compte 2 niveaux. Elle est neuve.
La maison se trouve dans un secteur convoité. Il y a plusieurs établissements scolaires (maternelle, élémentaire, primaire et collège) à moins de 10 minutes en voiture, tout comme une crèche à moins de 10 minutes à pied. Niveau transports en commun, on trouve la gare Longuerue-Vieux-Manoir à moins de 10 minutes en voiture. Il y a des bibliothèques, des tennis, des commerces, des boulangeries, deux supermarchés, des boucheries-charcuteries et une supérette dans les environs.
Son prix de vente est de 371 700 €.
Prenez contact avec Aurélien LEOVANT (02-35-80-66-66) pour toute question sur la maison ou sur les démarches à suivre. Faites de vos projets immobiliers une réalité avec Maisons Balency Boos.

Annonce proposée par un Agent Commercial Partenaire.

Mentions légales

Terrain proposé par un partenaire foncier selon disponibilités et autorisation de publicité au prix de 49 000 €. Hors droit d'enregistrement et frais de notaire. Terrain + Maison proposés au prix de 371 700 € (Hors branchements et raccordements, papiers peints, peintures, revêtement de sol dans les chambres. Tarif modifiable sans préavis). Etiquette énergie : A. Différents modèles disponibles pour ce terrain. Assurances et garanties du constructeur (RC professionnelle, décennale, dommage ouvrage, garantie de remboursement de l'acompte, livraison à prix et délai convenu) : https://www.maisons-balency.fr/informations-legales/. HEXAOM Services est enregistré auprès de l'ORIAS en tant que Courtier en financement, Niveau 1, sous le numéro 14001345.

Contactez l'agence de Boos

02 35 80 66 66

    * Champs obligatoires

    Vos informations sont traitées par HEXAOM et transmises à un conseiller commercial qui vous contactera afin de répondre à votre demande. Les plans et images présentés sur notre site sont la propriété d’HEXAOM et ne peuvent pas être reproduits sans son accord. Pour retrouver notre politique de protection des données personnelles et exercer vos droits conformément à la « loi informatique et liberté » cliquez-ici.