Maison neuve à
Rochefort-du-Gard (30650) Référence : PP2312155_1

Prix du projet : Maison avec Terrain

prix 429 300 €

  • 5 pièces
  • 3 chambres
  • Surface maison 123 m2

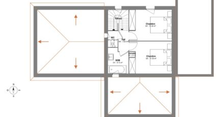
VENTE d'une maison T5 (123 m²) à Rochefort-du-Gard
IDÉALEMENT SITUÉE - MAISON 5 PIÈCES NEUVE
À 45 km de la mer Méditerranée et à 13 km d'Avignon, en vente idéalement située dans Rochefort-du-Gard (30650), notre agence Maisons Balency Uzès est ravie de vous proposer cette maison de 5 pièces de 123 m² et de 703 m² de terrain. Son intérieur propose trois chambres, une cuisine et deux salles de bains.
Cette maison comporte 2 niveaux. Elle est neuve.
La maison est située dans un secteur prisé. On trouve des écoles maternelles et élémentaires à moins de 10 minutes à pied. Niveau transports en commun, il y a trois gares (Avignon TGV, Avignon TGV terminal TER et Avignon Centre) à moins de 10 minutes en voiture. L'autoroute A9 et les nationales N7 et N100 sont accessibles à moins de 9 km. On trouve un tennis, quatre commerces, une boulangerie, un bureau de poste et une supérette dans les environs.
Elle est à vendre pour la somme de 429 300 €.
Contactez notre agence (Pascale PIEL : O6-O1-26-64-83) pour toute question sur la maison. Maisons Balency Uzès vous accompagne dans toutes vos démarches et à toutes les étapes de l'achat.

Mentions légales

Terrain proposé par un partenaire foncier selon disponibilités et autorisation de publicité au prix de 139 900 €. Hors droit d'enregistrement et frais de notaire. Terrain + Maison proposés au prix de 289 400 € (Hors branchements et raccordements, papiers peints, peintures, revêtement de sol dans les chambres. Tarif modifiable sans préavis). Etiquette énergie : A. Différents modèles disponibles pour ce terrain. Assurances et garanties du constructeur (RC professionnelle, décennale, dommage ouvrage, garantie de remboursement de l'acompte, livraison à prix et délai convenu) : https://www.maisons-balency.fr/informations-legales/. HEXAOM Services est enregistré auprès de l'ORIAS en tant que Courtier en financement, Niveau 1, sous le numéro 14001345.

Contactez l'agence de Uzès

04 66 57 25 45

    * Champs obligatoires

    Vos informations sont traitées par HEXAOM et transmises à un conseiller commercial qui vous contactera afin de répondre à votre demande. Les plans et images présentés sur notre site sont la propriété d’HEXAOM et ne peuvent pas être reproduits sans son accord. Pour retrouver notre politique de protection des données personnelles et exercer vos droits conformément à la « loi informatique et liberté » cliquez-ici.