Maison neuve à
Romilly-sur-Andelle (27610) Référence : KXA2317300_3

Prix du projet : Maison avec Terrain

prix 265 500 €

  • 6 pièces
  • 4 chambres
  • Surface maison 117 m2

VENTE : maison de 6 pièces (117 m²) à Romilly-sur-Andelle
MAISON 6 PIÈCES NEUVE - PROCHE DE ROUEN
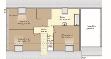
En vente à 17 km de Rouen, à Romilly-sur-Andelle (27610), nous vous présentons cette maison de 6 pièces de plain-pied de 117 m² et de 610 m² de terrain.
Elle comporte quatre chambres, une cuisine et deux salles de bains. La maison est neuve.
Il y a l'École Primaire Louise Michel-Maurice Genevoix à moins de 10 minutes à pied et deux crèches. Niveau transports en commun, on trouve deux gares (Val-de-Reuil et Pont-de-l'Arche) à moins de 10 minutes en voiture. Des autoroutes et des nationales sont accessibles à moins de 19 km. Il y a une bibliothèque, un commerce, deux boucheries-charcuteries et un bureau de poste dans les environs.
Elle est proposée à l'achat pour 265 500 €.
Prenez contact avec notre agence (Kévin XAVIER ALVES : 06-58-91-13-87) pour tout renseignement sur cette maison.

Annonce proposée par un Agent Commercial Partenaire.

Mentions légales

Terrain proposé par un partenaire foncier selon disponibilités et autorisation de publicité au prix de 58 000 €. Hors droit d'enregistrement et frais de notaire. Terrain + Maison proposés au prix de 207 500 € (Hors branchements et raccordements, papiers peints, peintures, revêtement de sol dans les chambres. Tarif modifiable sans préavis). Etiquette énergie : A. Différents modèles disponibles pour ce terrain. Assurances et garanties du constructeur (RC professionnelle, décennale, dommage ouvrage, garantie de remboursement de l'acompte, livraison à prix et délai convenu) : https://www.maisons-balency.fr/informations-legales/. HEXAOM Services est enregistré auprès de l'ORIAS en tant que Courtier en financement, Niveau 1, sous le numéro 14001345.

Contactez l'agence de Boos

02 35 80 66 66

    * Champs obligatoires

    Vos informations sont traitées par HEXAOM et transmises à un conseiller commercial qui vous contactera afin de répondre à votre demande. Les plans et images présentés sur notre site sont la propriété d’HEXAOM et ne peuvent pas être reproduits sans son accord. Pour retrouver notre politique de protection des données personnelles et exercer vos droits conformément à la « loi informatique et liberté » cliquez-ici.