Maison neuve à
Roquemaure (30150) Référence : PP2449102_3

Prix du projet : Maison avec Terrain

prix 319 300 €

  • 5 pièces
  • 3 chambres
  • Surface maison 95 m2

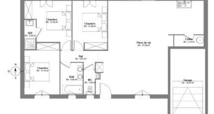
Maison de 5 pièces (95 m²) à vendre à Roquemaure
IDÉALEMENT SITUÉE - MAISON 5 PIÈCES NEUVE
À vendre : à 13 km d'Avignon, nous vous présentons cette maison de 5 pièces de plain-pied de 95 m², idéalement située dans Roquemaure (30150). Elle se divise en trois chambres, une cuisine et deux salles de bains.
Le terrain de la propriété s'étend sur 549 m².
Cette maison est neuve.
La maison se trouve dans un quartier attractif. Il y a l'École Élémentaire Albert Camus, l'École Maternelle Francette Prade et le Collège Paul Valéry à moins de 10 minutes à pied. Côté transports en commun, on trouve trois gares (Sorgues-Châteauneuf-du-Pape, Bédarrides et Courthézon) à moins de 10 minutes en voiture. Il y a un tennis, un bassin de natation, des commerces, deux épiceries et un bureau de poste à proximité du logement. Le marché Place de la Mairie a lieu chaque mardi matin.
Elle est proposée à l'achat pour 319 300 €.
N'hésitez pas à prendre contact avec notre agence (Pascale PIEL : O6-O1-26-64-83) pour tout renseignement sur la maison. Concrétisez vos projets immobiliers avec Maisons Balency Uzès.

Mentions légales

Terrain proposé par un partenaire foncier selon disponibilités et autorisation de publicité au prix de 135 000 €. Hors droit d'enregistrement et frais de notaire. Terrain + Maison proposés au prix de 319 300 € (Hors branchements et raccordements, papiers peints, peintures, revêtement de sol dans les chambres. Tarif modifiable sans préavis). Etiquette énergie : A. Différents modèles disponibles pour ce terrain. Assurances et garanties du constructeur (RC professionnelle, décennale, dommage ouvrage, garantie de remboursement de l'acompte, livraison à prix et délai convenu) : https://www.maisons-balency.fr/informations-legales/. HEXAOM Services est enregistré auprès de l'ORIAS en tant que Courtier en financement, Niveau 1, sous le numéro 14001345.

Contactez l'agence de Uzès

04 66 57 25 45

    * Champs obligatoires

    Vos informations sont traitées par HEXAOM et transmises à un conseiller commercial qui vous contactera afin de répondre à votre demande. Les plans et images présentés sur notre site sont la propriété d’HEXAOM et ne peuvent pas être reproduits sans son accord. Pour retrouver notre politique de protection des données personnelles et exercer vos droits conformément à la « loi informatique et liberté » cliquez-ici.