Maison neuve à
Rosny-sous-Bois
(93110) Référence :
AM2443791_1
Prix du projet : Maison avec Terrain
prix 335 000 €
- 5 pièces
- 3 chambres
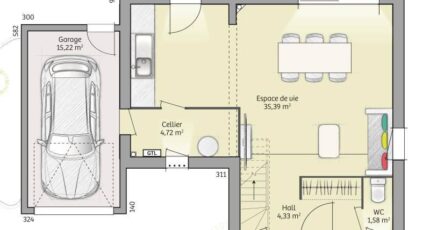
- Surface maison 90 m2
Rosny-sous-Bois : maison T5 (90 m²) à vendre
MAISON 5 PIÈCES NEUVE
En vente : à deux pas de la station Rosny Bois Perrier du RER E (10 min de Paris), découvrez cette maison de 5 pièces de 90 m² et de 300 m² de terrain à Rosny-sous-Bois (93110). Son intérieur offre trois chambres, une cuisine et une salle de bains.
Cette maison possède 2 niveaux. Elle est neuve.
Plusieurs établissements scolaires (maternelle, élémentaire, primaire et collège) se trouvent à moins de 10 minutes à pied, tout comme deux structures d'accueil pour les enfants en bas âge. Niveau transports en commun, il y a la station de RER Rosny-Bois-Perrier (ligne E) ainsi que la gare Rosny Bois Perrier dans un rayon de 1 km. On trouve une bibliothèque, deux tennis, un bassin de natation, des boulangeries, des commerces, quatre supermarchés, des boucheries-charcuteries et des épiceries à proximité du logement.
Son prix de vente est de 335 000 €.
Prenez contact avec Aurelien MONTANIER (06-24-66-88-34) pour tout renseignement sur la maison, sur les modalités de vente ou sur les démarches à suivre.
Annonce proposée par un Agent Commercial Partenaire.
Mentions légales
Terrain proposé par un partenaire foncier selon disponibilités et autorisation de publicité au prix de 149 000 €. Hors droit d'enregistrement et frais de notaire. Terrain + Maison proposés au prix de 335 000 € (Hors branchements et raccordements, papiers peints, peintures, revêtement de sol dans les chambres. Tarif modifiable sans préavis). Etiquette énergie : A. Différents modèles disponibles pour ce terrain. Assurances et garanties du constructeur (RC professionnelle, décennale, dommage ouvrage, garantie de remboursement de l'acompte, livraison à prix et délai convenu) : https://www.maisons-balency.fr/informations-legales/. HEXAOM Services est enregistré auprès de l'ORIAS en tant que Courtier en financement, Niveau 1, sous le numéro 14001345.Agence Maisons Balency de Saint-Maur-des-Fossés (94100)
- Téléphone :
- 01 87 36 85 37
- Adressse :
- 12 avenue de la république
94100 Saint-Maur-des-Fossés, France
