Maison neuve à
Rots
(14980) Référence :
SU2385084_1
Prix du projet : Maison avec Terrain
prix 294 900 €
- 7 pièces
- 5 chambres
- Surface maison 150 m2
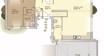
VENTE : maison T7 (150 m²) à Rots
PROCHE DE CAEN - MAISON 7 PIÈCES NEUVE
À 18 km de la mer et à 8 km du centre-ville de Caen, en vente à Rots (14980), Maisons Balency Caen vous présente cette maison de 7 pièces à étage de 150 m² et de 350 m² de terrain. Cette grande propriété se divise en cinq chambres, une cuisine et trois salles de bains.
Cette maison est neuve.
Idéalement située et facilement accessible par la nationale 13 reliant Caen et Bayeux. La commune de Rots est desservie par la ligne 30 des bus verts du Calvados. Une des branches de la ligne 20 du réseau Twisto dessert également la ville. Une école maternelle, une crèche et de nombreux commerces et services sont présents au sein de Rots.
Son prix de vente est de 294 900 €.
N'hésitez pas à prendre contact avec Sophie UCENDO (06-35-39-35-17) pour obtenir de plus amples informations sur la maison ou sur les démarches à suivre.
Mentions légales
Terrain proposé par un partenaire foncier selon disponibilités et autorisation de publicité au prix de 100 000 €. Hors droit d'enregistrement et frais de notaire. Terrain + Maison proposés au prix de 194 900 € (Hors branchements et raccordements, papiers peints, peintures, revêtement de sol dans les chambres. Tarif modifiable sans préavis). Etiquette énergie : A. Différents modèles disponibles pour ce terrain. Assurances et garanties du constructeur (RC professionnelle, décennale, dommage ouvrage, garantie de remboursement de l'acompte, livraison à prix et délai convenu) : https://www.maisons-balency.fr/informations-legales/. HEXAOM Services est enregistré auprès de l'ORIAS en tant que Courtier en financement, Niveau 1, sous le numéro 14001345.Agence Maisons Balency de Caen (14000)
- Téléphone :
- 02 31 50 38 15
- Adressse :
- 133, rue Saint Jean
14000 Caen, France
