Maison neuve à
Rouen (76000) Référence : MJ2334869_1

Prix du projet : Maison avec Terrain

prix 269 900 €

  • 6 pièces
  • 4 chambres
  • Surface maison 89 m2

Morgny-la-Pommeraye : maison de 6 pièces (89 m²) à vendre
QUARTIER RECHERCHÉ - MAISON 6 PIÈCES NEUVE
À vendre à 14 km de Rouen, Maisons Balency Boos vous propose cette maison de 6 pièces de 89 m² dans un quartier convoité de Morgny-la-Pommeraye (76750).
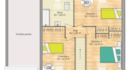
Il s'agit d'une maison de 2 niveaux. Son intérieur propose quatre chambres, une cuisine et une salle de bains. Cette maison est neuve.
Le terrain de la propriété est de 858 m².
La maison est située dans un secteur prisé. L'École Primaire les Trois Hameaux y est implantée. Côté transports, il y a trois gares (Morgny-la-Pommeraye, Longuerue-Vieux-Manoir et Saint-Martin-du-Vivier) à moins de 10 minutes en voiture. L'autoroute A28 et la nationale N28 sont accessibles à moins de 8 km. On trouve une bibliothèque et une épicerie à proximité.
Son prix de vente est de 269 900 €.
Contactez Michael JOURDON (06.43.05.84.44) pour plus d'informations sur la maison ou sur les démarches à suivre. Maisons Balency Boos est là pour vous accompagner à toutes les étapes de l'achat.

Annonce proposée par un Agent Commercial Partenaire.

Mentions légales

Terrain proposé par un partenaire foncier selon disponibilités et autorisation de publicité au prix de 79 000 €. Hors droit d'enregistrement et frais de notaire. Terrain + Maison proposés au prix de 190 900 € (Hors branchements et raccordements, papiers peints, peintures, revêtement de sol dans les chambres. Tarif modifiable sans préavis). Etiquette énergie : A. Différents modèles disponibles pour ce terrain. Assurances et garanties du constructeur (RC professionnelle, décennale, dommage ouvrage, garantie de remboursement de l'acompte, livraison à prix et délai convenu) : https://www.maisons-balency.fr/informations-legales/. HEXAOM Services est enregistré auprès de l'ORIAS en tant que Courtier en financement, Niveau 1, sous le numéro 14001345.

Contactez l'agence de Boos

02 35 80 66 66

    * Champs obligatoires

    Vos informations sont traitées par HEXAOM et transmises à un conseiller commercial qui vous contactera afin de répondre à votre demande. Les plans et images présentés sur notre site sont la propriété d’HEXAOM et ne peuvent pas être reproduits sans son accord. Pour retrouver notre politique de protection des données personnelles et exercer vos droits conformément à la « loi informatique et liberté » cliquez-ici.