Maison neuve à
Rouen (76000) Référence : MJ2334869_2

Prix du projet : Maison avec Terrain

prix 315 900 €

  • 6 pièces
  • 5 chambres
  • Surface maison 114 m2

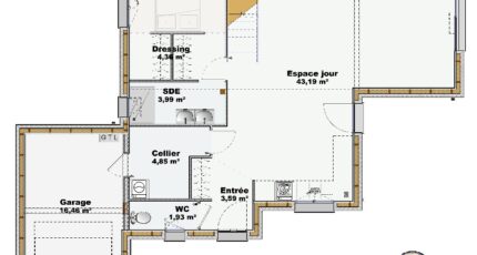
VENTE : maison F6 (114 m²) à Morgny-la-Pommeraye
QUARTIER RECHERCHÉ - MAISON 6 PIÈCES NEUVE
À quelques kilomètres de Rouen, votre agence Maisons Balency Boos est ravie de vous présenter cette maison de 6 pièces de 114 m² et de 858 m² de terrain nichée dans un quartier convoité de Morgny-la-Pommeraye (76750).
Il s'agit d'une maison de 2 niveaux. Son intérieur se divise en cinq chambres, une cuisine et deux salles de bains. La maison est neuve.
Cette maison est située dans un secteur recherché. On y trouve l'École Primaire les Trois Hameaux. Niveau transports, on trouve les gares Morgny-la-Pommeraye, Longuerue-Vieux-Manoir et Saint-Martin-du-Vivier à moins de 10 minutes en voiture. L'autoroute A28 et la nationale N28 sont accessibles à moins de 8 km. Il y a une bibliothèque et une épicerie à proximité.
Son prix de vente est de 315 900 €.
Contactez Michael JOURDON (tél : 06.43.05.84.44) pour toute information sur la maison ou sur les modalités de vente. Maisons Balency Boos est là pour vous accompagner dans tous vos projets immobiliers.

Annonce proposée par un Agent Commercial Partenaire.

Mentions légales

Terrain proposé par un partenaire foncier selon disponibilités et autorisation de publicité au prix de 79 000 €. Hors droit d'enregistrement et frais de notaire. Terrain + Maison proposés au prix de 236 900 € (Hors branchements et raccordements, papiers peints, peintures, revêtement de sol dans les chambres. Tarif modifiable sans préavis). Etiquette énergie : A. Différents modèles disponibles pour ce terrain. Assurances et garanties du constructeur (RC professionnelle, décennale, dommage ouvrage, garantie de remboursement de l'acompte, livraison à prix et délai convenu) : https://www.maisons-balency.fr/informations-legales/. HEXAOM Services est enregistré auprès de l'ORIAS en tant que Courtier en financement, Niveau 1, sous le numéro 14001345.

Contactez l'agence de Boos

02 35 80 66 66

    * Champs obligatoires

    Vos informations sont traitées par HEXAOM et transmises à un conseiller commercial qui vous contactera afin de répondre à votre demande. Les plans et images présentés sur notre site sont la propriété d’HEXAOM et ne peuvent pas être reproduits sans son accord. Pour retrouver notre politique de protection des données personnelles et exercer vos droits conformément à la « loi informatique et liberté » cliquez-ici.