Maison neuve à
Roumare (76480) Référence : SEMA9013_3

Prix du projet : Maison avec Terrain

prix 250 000 €

  • 5 pièces
  • 3 chambres
  • Surface maison 76 m2

VENTE : maison T5 (76 m²) à Roumare
PROCHE DE ROUEN - MAISON 5 PIÈCES NEUVE
À vendre : localisée à 48 km de la Manche et à deux pas de Rouen, nous sommes ravis de vous présenter cette maison de 5 pièces de 76 m² à Roumare (76480).
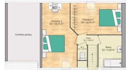
Cette maison possède 2 niveaux. Elle comporte trois chambres, une cuisine et une salle de bains. Cette maison est neuve.
Le terrain de la propriété s'étend sur 800 m².
Il y a une école primaire dans le quartier. Côté transports, on trouve cinq gares à moins de 10 minutes en voiture. Les autoroutes A150 et A151 et la nationale N338 sont accessibles à moins de 10 km. Il y a une bibliothèque, un tennis, une boulangerie, deux commerces et une boucherie-charcuterie à quelques minutes de la maison.
Elle est proposée à l'achat pour 250 000 €.
N'hésitez pas à prendre contact avec notre agence (MASSON Sébastien : 06-23-38-14-17) pour tout renseignement sur la maison, sur les modalités de vente ou sur les démarches à suivre.

Annonce proposée par un Agent Commercial Partenaire.

Mentions légales

Terrain proposé par un partenaire foncier selon disponibilités et autorisation de publicité au prix de 100 000 €. Hors droit d'enregistrement et frais de notaire. Terrain + Maison proposés au prix de 150 000 € (Hors branchements et raccordements, papiers peints, peintures, revêtement de sol dans les chambres. Tarif modifiable sans préavis). Etiquette énergie : A. Différents modèles disponibles pour ce terrain. Assurances et garanties du constructeur (RC professionnelle, décennale, dommage ouvrage, garantie de remboursement de l'acompte, livraison à prix et délai convenu) : https://www.maisons-balency.fr/informations-legales/. HEXAOM Services est enregistré auprès de l'ORIAS en tant que Courtier en financement, Niveau 1, sous le numéro 14001345.

Contactez l'agence de Boos

02 35 80 66 66

    * Champs obligatoires

    Vos informations sont traitées par HEXAOM et transmises à un conseiller commercial qui vous contactera afin de répondre à votre demande. Les plans et images présentés sur notre site sont la propriété d’HEXAOM et ne peuvent pas être reproduits sans son accord. Pour retrouver notre politique de protection des données personnelles et exercer vos droits conformément à la « loi informatique et liberté » cliquez-ici.