Maison neuve à
Roumare (76480) Référence : SEMA9013_6

Prix du projet : Maison avec Terrain

prix 294 000 €

  • 9 pièces
  • 5 chambres
  • Surface maison 124 m2

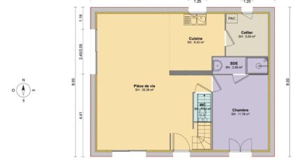
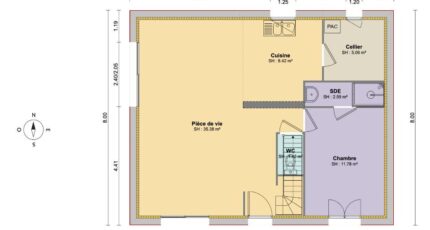
Maison de 9 pièces (124 m²) à vendre à Roumare
PROCHE DE ROUEN - MAISON 9 PIÈCES NEUVE
En vente : localisée à 48 km de la Manche et à 12 km de Rouen, Maisons Balency Boos vous présente cette maison de 9 pièces de 124 m² à Roumare (76480). Son intérieur comporte cinq chambres, une cuisine et trois salles de bains.
Le terrain de la propriété est de 800 m².
Il s'agit d'une maison de 2 niveaux. Elle est neuve.
Une école primaire est implantée dans le quartier. Niveau transports en commun, il y a cinq gares à moins de 10 minutes en voiture. Les autoroutes A150 et A151 et la nationale N338 sont accessibles à moins de 10 km. On trouve une bibliothèque, un tennis, une boulangerie, deux commerces et une boucherie-charcuterie dans les environs.
Elle est proposée à l'achat pour 294 000 €.
Prenez contact avec Sébastien MASSON (06-23-38-14-17) pour toute information sur la maison.

Annonce proposée par un Agent Commercial Partenaire.

Mentions légales

Terrain proposé par un partenaire foncier selon disponibilités et autorisation de publicité au prix de 100 000 €. Hors droit d'enregistrement et frais de notaire. Maison proposée, avec un contrat de construction de maison individuelle, dans le cadre de la loi du 19/12/1990, au prix de 194 000 € (Hors branchements et raccordements, papiers peints, peintures, revêtement de sol dans les chambres, qui sont chiffrés dans les travaux qui restent à charge du client. Tarif modifiable sans préavis). Étiquette énergie : A. Différents modèles disponibles pour ce terrain. Assurances et garanties du constructeur comprises (RC professionnelle, décennale, dommage ouvrage).

Contactez l'agence de Boos

02 35 80 66 66

    * Champs obligatoires

    Vos informations sont traitées par HEXAOM et transmises à un conseiller commercial qui vous contactera afin de répondre à votre demande. Les plans et images présentés sur notre site sont la propriété d’HEXAOM et ne peuvent pas être reproduits sans son accord. Pour retrouver notre politique de protection des données personnelles et exercer vos droits conformément à la « loi informatique et liberté » cliquez-ici.