Maison neuve à
Routot (27350) Référence : SEMA9029_11

Prix du projet : Maison avec Terrain

prix 395 000 €

  • 7 pièces
  • 5 chambres
  • Surface maison 170 m2

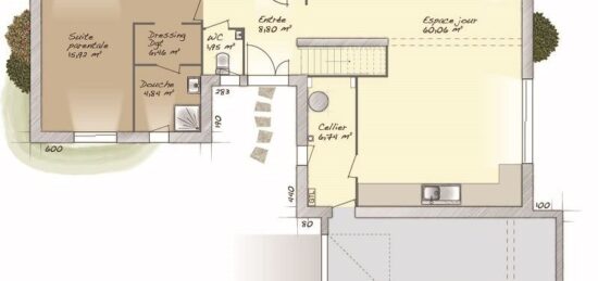
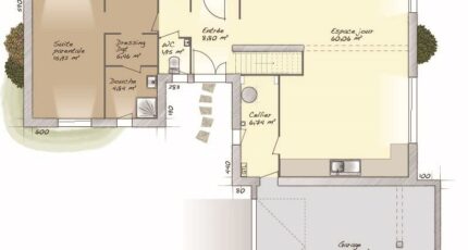
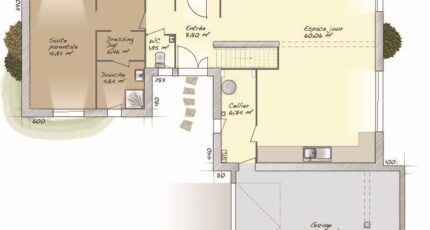
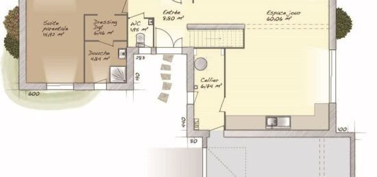
VENTE : maison F7 (170 m²) à Routot
PROCHE DE ROUEN - MAISON 7 PIÈCES NEUVE
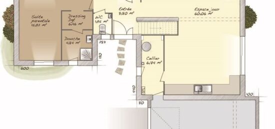
À vendre à 29 km de la Manche et à 27 km de Rouen, nous vous présentons cette maison de 7 pièces de plain-pied de 170 m² et de 1 600 m² de terrain à Routot (27350). Elle compte cinq chambres, une cuisine et trois salles de bains.
La maison est neuve.
Il y a le Collège le Roumois à moins de 10 minutes à pied. Les autoroutes A13 et A131 sont accessibles à moins de 10 km. On trouve deux tennis, une boulangerie, un commerce, un supermarché et une épicerie à quelques minutes de la maison. Le marché Place Leclerc anime les environs tous les mercredis matin.
Elle est à vendre pour la somme de 395 000 €.
Contactez notre agence (Sébastien MASSON : 06-23-38-14-17) pour toute question sur cette maison. Maisons Balency Boos vous accompagne dans tous vos projets immobiliers et à toutes les étapes de l'achat.

Annonce proposée par un Agent Commercial Partenaire.

Mentions légales

Terrain proposé par un partenaire foncier selon disponibilités et autorisation de publicité au prix de 65 000 €. Hors droit d'enregistrement et frais de notaire. Maison proposée, avec un contrat de construction de maison individuelle, dans le cadre de la loi du 19/12/1990, au prix de 330 000 € (Hors branchements et raccordements, papiers peints, peintures, revêtement de sol dans les chambres, qui sont chiffrés dans les travaux qui restent à charge du client. Tarif modifiable sans préavis). Étiquette énergie : A. Différents modèles disponibles pour ce terrain. Assurances et garanties du constructeur comprises (RC professionnelle, décennale, dommage ouvrage).

Contactez l'agence de Boos

02 35 80 66 66

    * Champs obligatoires

    Vos informations sont traitées par HEXAOM et transmises à un conseiller commercial qui vous contactera afin de répondre à votre demande. Les plans et images présentés sur notre site sont la propriété d’HEXAOM et ne peuvent pas être reproduits sans son accord. Pour retrouver notre politique de protection des données personnelles et exercer vos droits conformément à la « loi informatique et liberté » cliquez-ici.