Maison neuve à
Routot (27350) Référence : SEMA9029_3

Prix du projet : Maison avec Terrain

prix 215 000 €

  • 5 pièces
  • 3 chambres
  • Surface maison 76 m2

VENTE : maison de 5 pièces (76 m²) à Routot
MAISON 5 PIÈCES NEUVE - PROCHE DE ROUEN
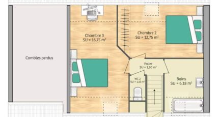
À vendre à 29 km de la Manche et à deux pas de Rouen, nous sommes heureux de vous présenter cette maison de 5 pièces de 76 m² à Routot (27350). Elle propose trois chambres, une cuisine et une salle de bains.
Le terrain du bien est de 1 600 m².
Il s'agit d'une maison de 2 niveaux. Elle est neuve.
Le Collège le Roumois est implanté à moins de 10 minutes à pied. Les autoroutes A13 et A131 sont accessibles à moins de 10 km. Il y a deux tennis, une boulangerie, un commerce, un supermarché et une épicerie dans les environs. Enfin, le marché Place Leclerc a lieu tous les mercredis matin.
Elle est proposée à l'achat pour 215 000 €.
N'hésitez pas à prendre contact avec notre agence (MASSON Sébastien : 06-23-38-14-17) pour toute information sur la maison. Donnez vie à vos projets immobiliers avec Maisons Balency Boos.

Annonce proposée par un Agent Commercial Partenaire.

Mentions légales

Terrain proposé par un partenaire foncier selon disponibilités et autorisation de publicité au prix de 65 000 €. Hors droit d'enregistrement et frais de notaire. Maison proposée, avec un contrat de construction de maison individuelle, dans le cadre de la loi du 19/12/1990, au prix de 150 000 € (Hors branchements et raccordements, papiers peints, peintures, revêtement de sol dans les chambres, qui sont chiffrés dans les travaux qui restent à charge du client. Tarif modifiable sans préavis). Étiquette énergie : A. Différents modèles disponibles pour ce terrain. Assurances et garanties du constructeur comprises (RC professionnelle, décennale, dommage ouvrage).

Contactez l'agence de Boos

02 35 80 66 66

    * Champs obligatoires

    Vos informations sont traitées par HEXAOM et transmises à un conseiller commercial qui vous contactera afin de répondre à votre demande. Les plans et images présentés sur notre site sont la propriété d’HEXAOM et ne peuvent pas être reproduits sans son accord. Pour retrouver notre politique de protection des données personnelles et exercer vos droits conformément à la « loi informatique et liberté » cliquez-ici.