Maison neuve à
Routot (27350) Référence : SEMA9029_9

Prix du projet : Maison avec Terrain

prix 339 000 €

  • 5 pièces
  • 3 chambres
  • Surface maison 120 m2

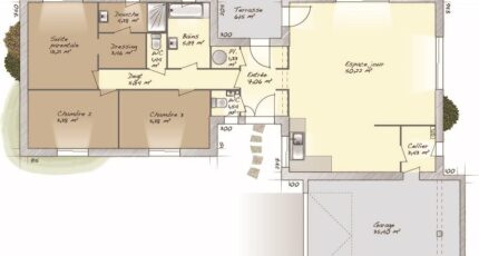
Routot : maison T5 (120 m²) à vendre
MAISON 5 PIÈCES NEUVE - PROCHE DE ROUEN
À 29 km de la Manche et à deux pas de Rouen, à vendre à Routot (27350), nous sommes heureux de vous présenter cette maison de 5 pièces de plain-pied de 120 m² et de 1 600 m² de terrain.
Elle comporte trois chambres, une cuisine et deux salles de bains. Cette maison est neuve.
Il y a le Collège le Roumois à moins de 10 minutes à pied. Les autoroutes A13 et A131 sont accessibles à moins de 10 km. On trouve deux tennis, une boulangerie, un commerce, un supermarché et une épicerie à quelques minutes à peine. Ne manquez pas le marché Place Leclerc chaque mercredi matin.
Il est à vendre pour la somme de 339 000 €.
Contactez notre agence (MASSON Sébastien : 06-23-38-14-17) pour obtenir de plus amples renseignements sur cette maison, sur les modalités de vente ou sur les démarches à suivre. Maisons Balency Boos vous accompagne dans tous vos projets immobiliers et à toutes les étapes de votre projet.

Annonce proposée par un Agent Commercial Partenaire.

Mentions légales

Terrain proposé par un partenaire foncier selon disponibilités et autorisation de publicité au prix de 65 000 €. Hors droit d'enregistrement et frais de notaire. Maison proposée, avec un contrat de construction de maison individuelle, dans le cadre de la loi du 19/12/1990, au prix de 274 000 € (Hors branchements et raccordements, papiers peints, peintures, revêtement de sol dans les chambres, qui sont chiffrés dans les travaux qui restent à charge du client. Tarif modifiable sans préavis). Étiquette énergie : A. Différents modèles disponibles pour ce terrain. Assurances et garanties du constructeur comprises (RC professionnelle, décennale, dommage ouvrage).

Contactez l'agence de Boos

02 35 80 66 66

    * Champs obligatoires

    Vos informations sont traitées par HEXAOM et transmises à un conseiller commercial qui vous contactera afin de répondre à votre demande. Les plans et images présentés sur notre site sont la propriété d’HEXAOM et ne peuvent pas être reproduits sans son accord. Pour retrouver notre politique de protection des données personnelles et exercer vos droits conformément à la « loi informatique et liberté » cliquez-ici.