Maison neuve à
Routot (27350) Référence : RC2444829_1

Prix du projet : Maison avec Terrain

prix 195 946 €

  • 3 pièces
  • 2 chambres
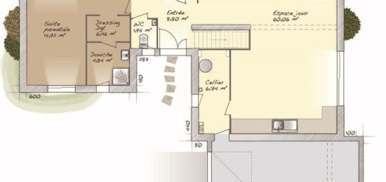
  • Surface maison 60 m2

A construire : maison T3 (60 m²) à Routot
IDÉALEMENT SITUÉE - MAISON 3 PIÈCES NEUVE
En vente : à 29 km de la Manche et à quelques kilomètres de Rouen, idéalement située dans Routot (27350), Maisons Balency Boos vous propose cette maison de 3 pièces de plain-pied de 60 m².
Elle compte deux chambres, une cuisine et une salle de bains. Cette maison est neuve.
Le terrain de la propriété s'étend sur 1 588 m².
La maison est située dans un quartier prisé. Le Collège le Roumois est implanté à moins de 10 minutes à pied. On trouve deux tennis, deux commerces et une épicerie à proximité. Ne manquez pas le marché Place Leclerc tous les mercredis matin.
Elle est à vendre pour la somme de 195 946 €.
Contactez notre agence (RENIER Célia : 07-62-90-87-77) pour obtenir de plus amples informations sur la maison, sur les modalités de vente et sur les démarches à suivre. Donnez vie à vos projets immobiliers avec Maisons Balency Boos.

Annonce proposée par un Agent Commercial Partenaire.

Mentions légales

Terrain proposé par un partenaire foncier selon disponibilités et autorisation de publicité au prix de 65 000 €. Hors droit d'enregistrement et frais de notaire. Terrain + Maison proposés au prix de 195 946 € (Hors branchements et raccordements, papiers peints, peintures, revêtement de sol dans les chambres. Tarif modifiable sans préavis). Etiquette énergie : A. Différents modèles disponibles pour ce terrain. Assurances et garanties du constructeur (RC professionnelle, décennale, dommage ouvrage, garantie de remboursement de l'acompte, livraison à prix et délai convenu) : https://www.maisons-balency.fr/informations-legales/. HEXAOM Services est enregistré auprès de l'ORIAS en tant que Courtier en financement, Niveau 1, sous le numéro 14001345.

Contactez l'agence de Boos

02 35 80 66 66

    * Champs obligatoires

    Vos informations sont traitées par HEXAOM et transmises à un conseiller commercial qui vous contactera afin de répondre à votre demande. Les plans et images présentés sur notre site sont la propriété d’HEXAOM et ne peuvent pas être reproduits sans son accord. Pour retrouver notre politique de protection des données personnelles et exercer vos droits conformément à la « loi informatique et liberté » cliquez-ici.